White House

Habitation unifamiliale

2008 - 2010 2008 - 2010
Réalisé

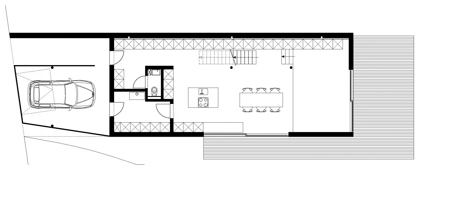
Le terrain, étroit et traversé par une servitude de passage, a généré une maison toute en longueur. Le bâtiment s'installe à front de rue, le long d'un mitoyen. Son implantation permet de tracer une perspective vers le jardin boisé. 

Simple, fonctionnelle, intégrée dans son contexte, l'habitation fermée en façade avant, s'ouvre au fil du cheminement intérieur. Elle va chercher la nature et la lumière de l'est à l'arrière, celle du sud en façade latérale. Si celle-ci donne sur la servitude et des vis-à-vis, l'architecte crée un écran de verdure et surélève les espaces de vie pour les protéger des regards. L'aménagement intérieur inscrit les circulations et rangements au nord, le long du mitoyen.

Anne-Catherine De Bast

Sources
Brandajs Laurent & Debusschere Stephan, Architecture : Les nouveaux talents, Bruxelles : Éditions Racine, 2011.