Union coopérative
Jalon XX
Immeuble à appartements Magasins
1950 - 1952
1950 - 1952
1950 - 1952
1950 - 1952
1950 - 1952
Réalisé
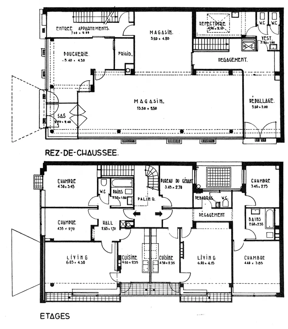
À proximité de la cité construite pour les sinistrés par les mêmes architectes, le programme est révélateur d'une démarche exemplaire où la mixité des usages est valorisée dans un parti clair, une rationalité de la composition et une expression architecturale originale. Au rez-de-chaussée sont situés les commerces et, aux deux niveaux supérieurs, quatre logements et le bureau du gérant de la coopérative.
La parcelle est située sur un angle entre la rue Vaudrée, axe principal de la ville orienté au nord, et la rue du Prince Régent, à l'ouest. La façade nord est habillée de grandes dalles rectangulaires de terre cuite naturelle sablées et animée par un grand auvent (démoli) qui protège l'entrée des commerces et, au sommet, par le sigle U.C. (disparu), donnant un aspect publicitaire à la construction.
La façade ouest se présente avec des bandeaux horizontaux vitrés alternés par des revêtements en dalles de grès. Le dessin des balcons, des châssis et des vitrines témoigne du talent graphique des architectes, attentifs à la sobriété de l'expression et soucieux d'offrir une image significative du renouveau architectural sans être ostentatoire.
En recevant le prix Van de Ven, le plus prestigieux en Belgique à l'époque, le bureau gagne en reconnaissance, encouragé dans les projets de grande envergure qu'il débute alors (Cité de Droixhe).
Maurizio Cohen
| Sources |
|---|
| «Immeuble de l'Union Coopérative à Angleur. Prix Van de Ven 1953» dans Architecture, n° 7, février, 1953, p.259. |
| «Le Prix Van de Ven 1953. Le bâtiment de l'Union Coopérative à Angleur» dans La Maison, n° 3, mars, 1953, p.70-72 ; 97. |
| «Le bâtiment de l'Union Coopérative à Angleur» dans La Maison, n° 3, mars, 1953, p.70-72. |
| «Le bâtiment de l'Union Coopérative à Angleur» dans La Maison, n° 4, avril, 1951, p.155. |
| De Neuville L., «Le "Chantier national" d'habitations pour sinistrés et l'immeuble de l'Union Coopérative d'Angleur-lez-Liège» dans La Technique des travaux, n° 7 et 8, Liège, juillet-août, 1952, p.211-216. |