Théâtre de Liège
Théâtres / Opéra
2003 - 2013
2003 - 2013
2003 - 2013
2003 - 2013
2003 - 2013
2003 - 2013
2003 - 2013
2003 - 2013
2003 - 2013
2003 - 2013
2003 - 2013
2003 - 2013
Réalisé
Face à l'Université, la Société libre d'émulation – fondée en 1779 par le prince évêque Velbrück pour les Arts, Lettres et Sciences – est transformée par les architectes du théâtre de Mons (2006), mettant fin à l'installation provisoire en Outremeuse (1973) du premier Centre dramatique de Wallonie. L'équipement affirme sa stature urbaine. La façade néoclassique à quatre niveaux rythmée de briques et de pierre bleue (Julien Koenig, 1933-1939) – dont les structures, murs et planchers sont en béton, sur pieux Franki – arbore blasons et allégories. En respect de cet édifice classé, les architectes restaurent et inscrivent dans ce corset bâti, suivant un travail de curetage et de rapiéçage investissant les lots mitoyens, un équipement de 8 000 m2.
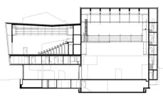
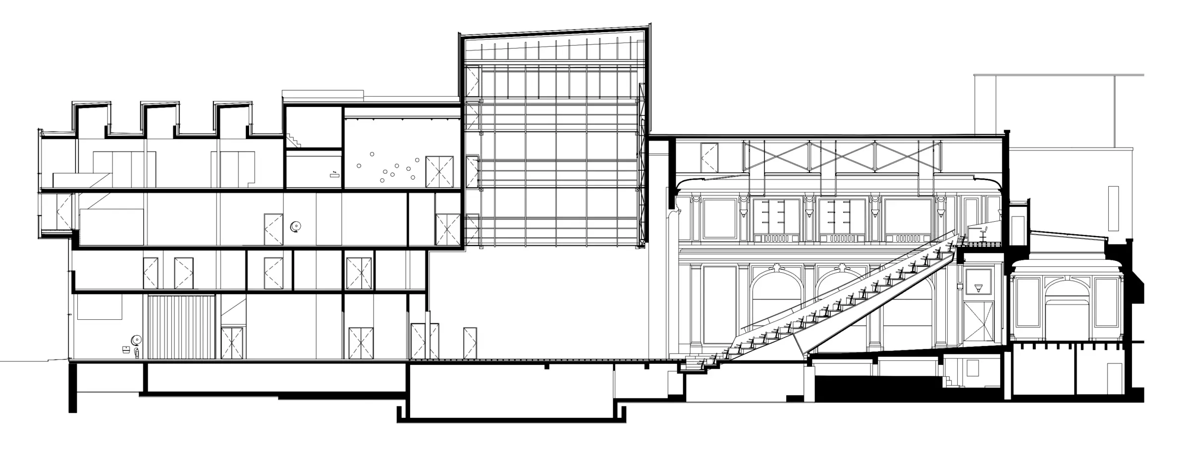
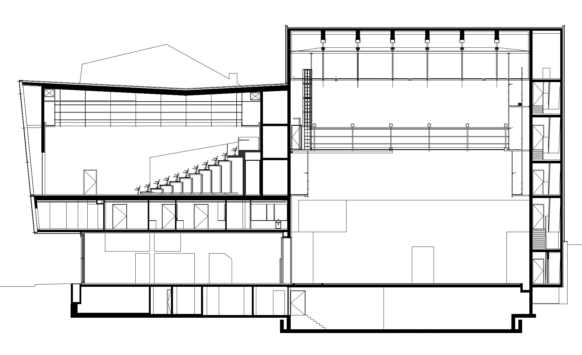
La nouvelle palette demeure sobre, à l'exécution maîtrisée, combinant béton, verre et bois de chêne qui, depuis l'escalier existant et le parquet du foyer supérieur, se déclinent en châssis et menuiseries jusqu'au mobilier. Cette essence habille la sous-face de la coque de la salle, masquant une puissante structure en acier désolidarisée des parois classées. Celle-ci prend appui au nez de scène pour porter à faux les cinq cent cinquante-sept places en amphithéâtre, garantissant au public une forte proximité avec le jeu. Mesurant 21 sur 18 m, le plateau est équipé d'une machinerie performante ; son cadre est étiré de 11 à 15 m de largeur pour 9,60 m de haut.
La porosité visuelle entre ville et théâtre est renforcée grâce aux grands pans vitrés du mur « à jardin », instaurant des perspectives qui traversent le péristyle et l'accueil. Des mots, en lignes textuelles imaginées par P. Corillon, s'inscrivent dans les matériaux et accompagnent public et acteurs. Côté place, le volume de la petite salle modulable est projeté au-dessus de l'accès décor et du foyer des comédiens ; il suspend un écran cristallin qui offre à ses cent quarante- cinq places la ville comme fond de scène. Devant une peau vitrée acoustique vient s'étirer un mur rideau, qui alterne pans de vitrages clairs et griffés, fondant un écrin liquide vibrant sous la lumière.
Rue des Carmes, les ateliers de costume forment un corps saillant en console de la même matière. Comportant café, restaurant, salle d'exposition et librairie, le programme a été étendu à la rénovation du Cercle des Beaux-Arts et de la cour de l'Émulation dans sa maison Renaissance, rue Charles Magnette.
Rafaël Magrou
| Sources |
|---|
| Séron-Pierre Catherine, «Pierre Hebbelinck-Pierre de Wit Théâtre Liège, Belgique» dans AMC Le Moniteur, n° 228, 2013, p.42-49. |
| Vitalis L., «Théâtre de Liège» dans Exé Architecture, Détail, Technique, n° 15, février-mars-avril, 2014, p.133-149. |