Siège du marché couvert de Liège

Bureaux

1962 - 1964 1962 - 1964
Réalisé

Dans le cadre du regroupement des entrepôts de douanes et de l'abattoir sur la plaine de Droixhe, le déménagement du marché de gros du centre historique (place Cockerill) est décidé en 1959 sous l'impulsion de Jean Lejeune, échevin des Travaux publics. 

La conception du site est confiée à Henri Montois, lauréat avec cinq autres architectes (Robert Courtois, Thierry et Frédérique HoetSegers, Robert Moens de Hase, Jacques Goossens-Bara) du concours pour le Pavillon des transports de l'Exposition universelle de Bruxelles en 1958, une remarquable structure (ingénieur Abraham Lipski) distinguée par le prix Reynolds de l'American Institute for Architects, remontée partiellement sur place pour former la halle de l'abattoir (démolie). 

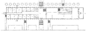
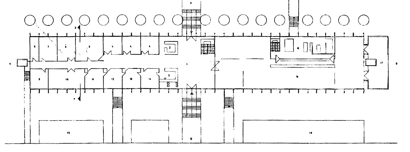
Le nouveau marché est considéré à l'époque comme unique en Belgique et l'un des plus modernes de la jeune Europe des six. Étendu sur 14 ha, il est directement relié à l'autoroute, au rail et au fleuve. Plus qu'un marché de fruits et légumes, il s'agit d'un centre de distribution régional pour les denrées périssables, couplé à des commerces et services. 

De l'ensemble fonctionnaliste, il ne subsiste aujourd'hui que le portique d'entrée et le bâtiment administratif. Sur plan rectangulaire, héritage de la vision rationnelle de l'architecte, il est rythmé par des baies verticales et traversé par un escalier central extérieur.

Paul Hautecler

Sources
Lejeune Jean, «Le Marché de Liège» dans La Maison, n° 7, juillet, 1965, p.226-232.
«Le nouveau marché couvert de Liège» dans La Maison, n° 7, juillet, 1965, p.227-232-24.