Résidences Ateliers Vivegnis International (RAVI)
Ateliers d'artistes
2011 - 2013
2011 - 2013
2011 - 2013
Réalisé
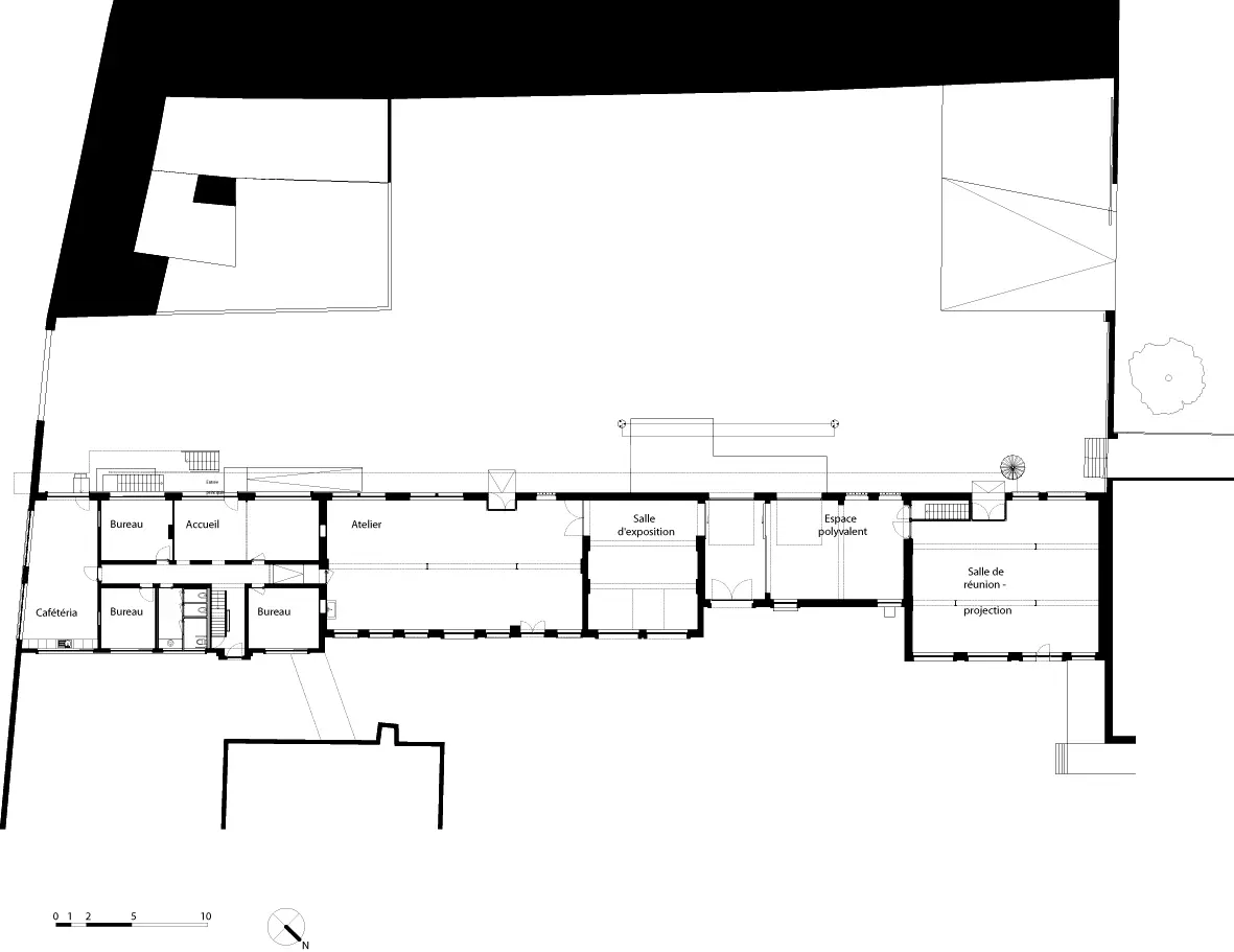
Le complexe abrite des ateliers, résidences et espaces d'exposition d'artistes, en complémentarité avec les équipements voisins (Centre d'art contemporain Espace 251 Nord et Vivegnis Housing). Le volume du corps principal est couronné d'une toiture plate, mettant en valeur la structure métallique d'origine (bureaux du charbonnage Bonne-Espérance-Batterie) et rehaussant, de panneaux de polycarbonate translucides, le motif dentelé des sheds. Une passerelle en acier déployé court sur toute la façade avant, économisant à l'étage un couloir de distribution.
Ces deux interventions sont représentatives du traitement auquel l'architecte soumet le bâtiment. Les arcs des baies de la façade arrière sont comblés de bois, les briques des murs extérieurs simplement repeintes, le plafond du rez-de-chaussée est recouvert de cellulose blanche et le sol des ateliers est laissé nu. Chaque détail tend à faire des contraintes techniques et économiques un événement plastique qui contribue à la relecture des éléments originels, une philosophie d'intervention déjà mise en œuvre au Pôle image.
Deborah Levy
| Sources |
|---|
| Architectures, Wallonie-Bruxelles. Inventaires #1 Inventories 2010-2013, Bruxelles, p.188-193. |