Résidence Volta
Immeuble à appartements
1960
1960
1960
1960
2007 - 2013
2007 - 2013
2007 - 2013
2007 - 2013
Réalisé
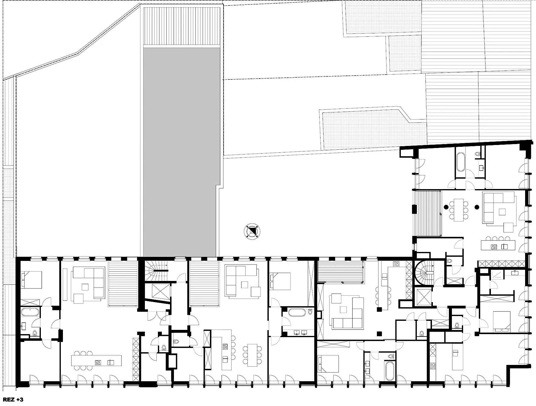
Construit en 1960 par Jean Poskin, Harry Schutz et Henri Bonhomme, le siège de l'Union des centrales électriques de Liège-Namur-Luxembourg (Linalux) est reconverti en résidence de haut standing. L'immeuble à ossature de béton accueille vingt-deux appartements et des bureaux au rez-de-chaussée.
Pour être réorganisé, le bâtiment a été évidé de ses cloisons et rehaussé – deux logements ont été aménagés en toiture –, mais il a également gagné un niveau par le bas : un parking a été aménagé en sous-œuvre.
Pour répondre aux normes énergétiques actuelles, l'arrière a été isolé par l'extérieur (crépi). En façade avant, animée par un bardage bois plein ou ajouré, l'isolant a été placé à l'intérieur afin de laisser s'exprimer la trame originelle en béton, dans le respect du bâti initial, très bien dessiné, comme la cage d'escalier et le mât d'éclairage de la rue, intégré à la composition.
Anne-Catherine De Bast
| Sources |
|---|
| «Immeuble de bureaux U.C.E. Linalux à Liège» dans La Maison, n° 7, juillet, 1961, p.208-214. |