Résidence Croix du Sud

Immeuble à appartements

1966 - 1968 1966 - 1968
Réalisé

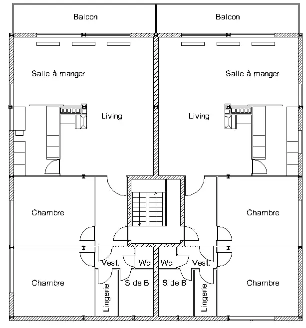
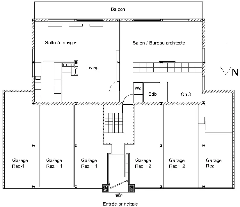
Cette réalisation est un modèle de rationalité constructive et d'efficacité organisationnelle. Le bâtiment isolé s'inscrit dans la pente du terrain : trois niveaux à rue, quatre sur jardin plein sud. Le plan carré distribue les appartements suivant un dispositif croisé : quatre traversant et deux sur jardin, en butée sur les caves et les garages à rue ; un plan symétrique, l'escalier au centre, la vie commune sur terrasse au sud. 

Le principe constructif favorise les composants standardisés et donne un rôle essentiel à l'acier. La maille structurelle de 3,65 m fonde le plan et projette une grille modulaire en façade qui orchestre la composition des pleins et des vides. Le parement – des cassettes préformées en acier laqué blanc – recouvre les parties habitées. 

Depuis la rue, un parvis met en scène une grande villa : un socle en bois marqué par l'auvent d'une entrée axiale et le bel-étage enveloppé dans une peau soyeuse en ronde-bosse. Pourtant cette figure résulte d'un plan flexible aux critères strictement pragmatiques. Ce système peut générer une typologie. On le voit bien se disperser et initier un plan-masse aux formes analogues et variées. 

Pas d'absolu dans la démarche, les maîtres mots qui conduisent l'expérimentation sont la structure, l'organisation et l'économie. L'idée est de trouver un principe applicable à toutes sortes de configurations et de programmes. Un système mixte conjuguant une assise en dur et une superstructure en acier à la mise en œuvre à sec rapide.

Georges-Éric Lantair

Sources
Je vais construire, n° 87, janvier, 1986, p.111-118.