Résidence Lucien Brull
Jalon XX

Polycliniques

1962 - 1967 1962 - 1967
Réalisé

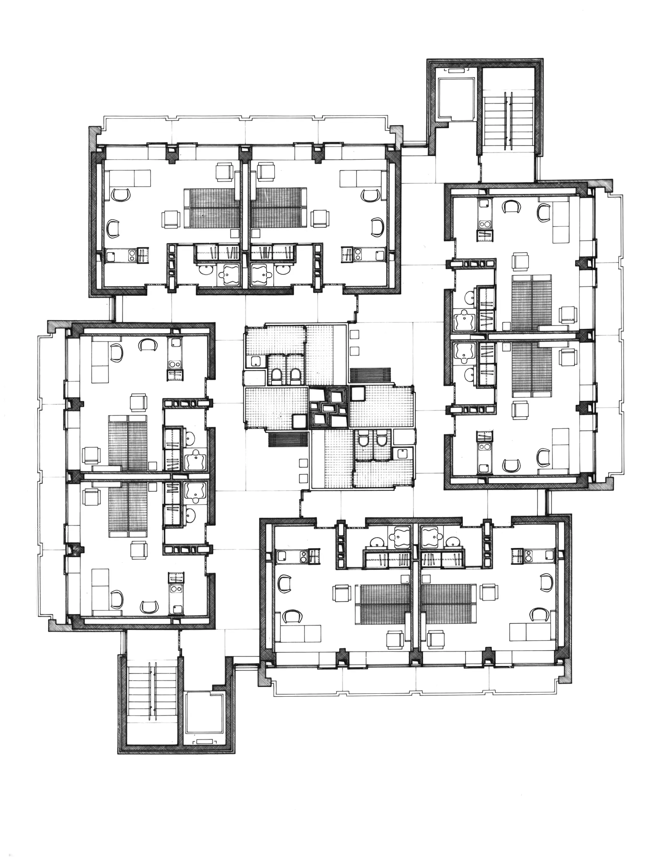
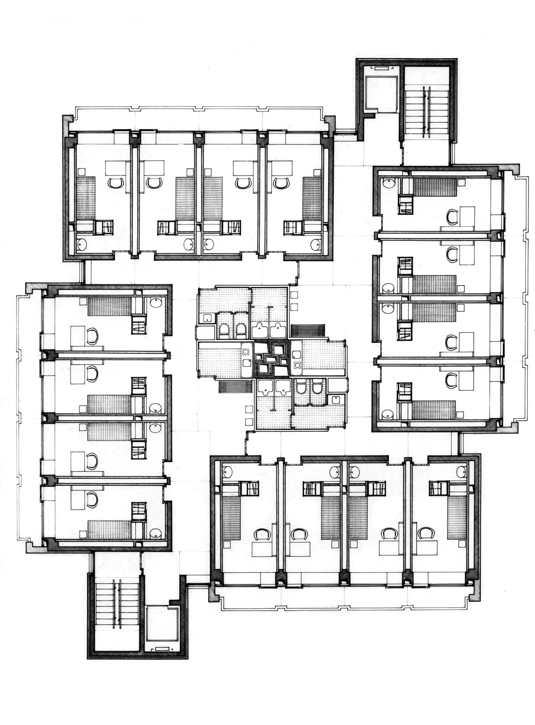
La résidence adopte le nom du professeur Lucien Brull (1898-1959) qui créa l'institut de Clinique et de Polyclinique médicales de l'Université de Liège. Elle est, à l'origine, destinée à accueillir des étudiants et, en particulier, ceux de la Faculté de médecine qui est, à l'époque, toujours implantée au centre-ville. Le programme prévoit l'aménagement de cent chambres individuelles, de vingt-huit chambres doubles pour couple, d'un appartement pour un gardien et d'un autre pour le concierge ; enfin, une bibliothèque, un restaurant et des espaces communs. 

Étant donné la morphologie et la taille du site urbain en rive droite de la Meuse, Charles Vandenhove conçoit une tour de quatorze étages sur laquelle s'articulent toutes les fonctions (restaurant, cuisine, espaces communs, etc.). La résidence tient une place importante dans son œuvre. Sur le plan typologique, elle est sa première expérience de logement en collectivité. Mais elle constitue surtout un témoignage essentiel des recherches qu'il poursuit dans les années 1960 et que plusieurs critiques qualifient de brutalistes. 

La quête de l'essentiel, l'emploi de matériaux simples (béton préfabriqué et briques apparentes), la clarté des volumes caractérisent, en effet, l'ensemble. Élément remarquable : le grand escalier hélicoïdal en granito qui distribue une part des circulations verticales qui desservent le rez-de-chaussée. Le soin apporté à la menuiserie est remarquable, en ce compris le design mobilier où le critique Geert Bekaert reconnaît une contribution à élever le bâtiment « au rang d'un geste puissant d'où se dégagent une vie intense, un besoin profond de créer une certaine durée dans le passager et le provisoire ». 

Cette œuvre s'intègre à une série de constructions : INICHAR, le magasin à livres et l'institut d'éducation physique au Sart-Tilman, sa maison personnelle et Repriels. À l'ouverture, en 1985, du Centre hospitalier universitaire du Sart-Tilman, la résidence des étudiants a été fermée et transformée en hôpital. Dans le hall de la tour se trouvaient des peintures de l'artiste espagnol Luis Feito qui ont été démontées et sont aujourd'hui conservées aux Collections artistiques de l'Université. 

Pierre Henrion

Sources
Dercon Chris & Verschaffel Bart & Bekaert Geert, Charles Vandenhove: art and architecture, Tournai, La Renaissance du Livre, 1998.
Lantair Georges-Éric & Hebbelinck Pierre & Michel Gérard, «Résidence Brull» dans Liège. Architectures de la ville. Cartes et répertoires, n° 362, Liège, HLM fondation d'architecture et d'urbanisme, Ville de liège, 2006.
Cortembos Thérèse, Liège, Liège, Mardaga, 2004.