Parc résidentiel Le Petit Bourgogne

Habitation unifamiliale

1969 1969 1969
Réalisé

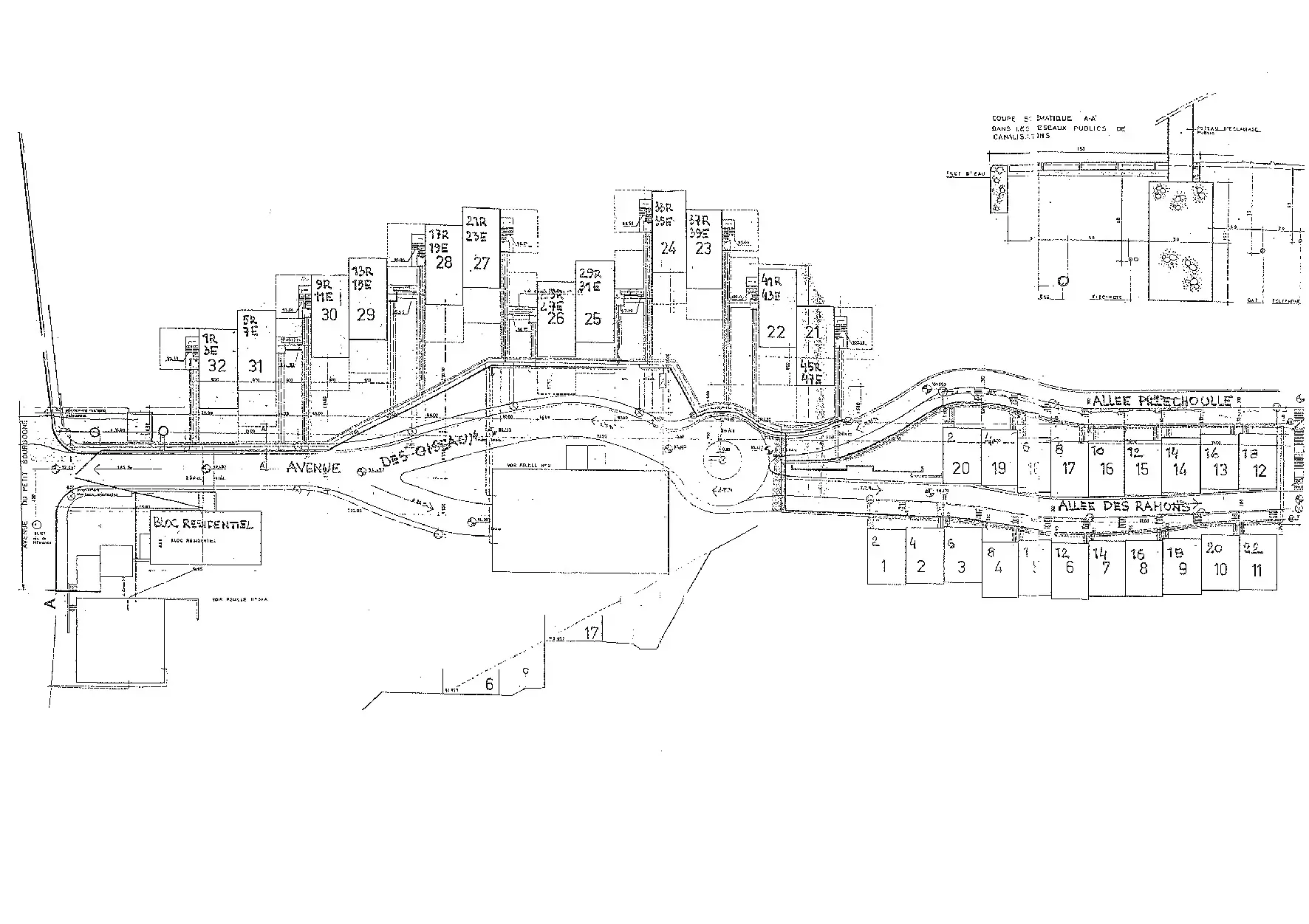
Les architectes conçoivent un ensemble de cinquante-deux logements destinés à la vente et à la location, implantés sur le versant sud de Cointe et bénéficiant tous de la vue sur la vallée. 

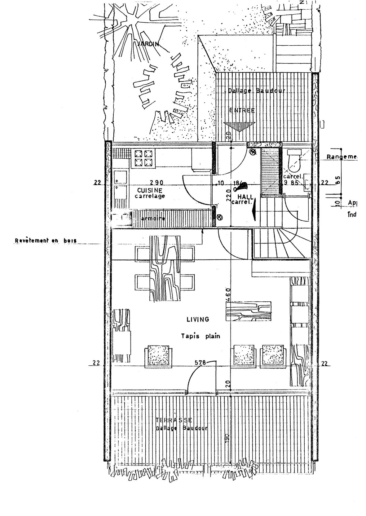
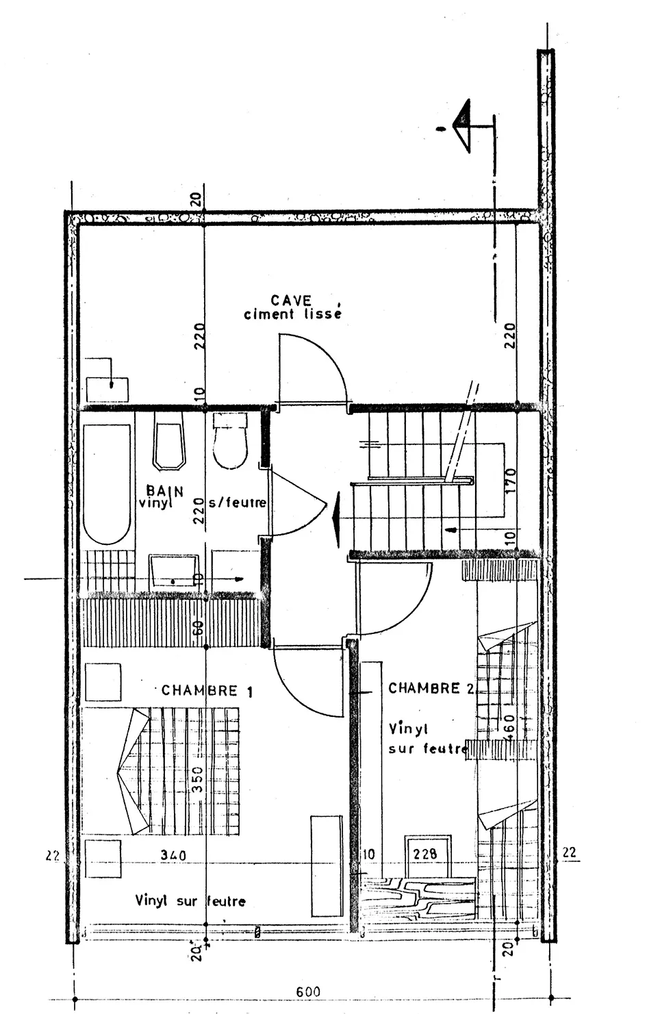
Rassemblés autour d'une avenue privative divisée à son terme en deux allées, le plan-masse se décompose, à front de rue, en un immeuble de trois niveaux (8 appartements de 1 et 2 chambres) avec parking commun partiellement en sous-sol, suivi de six groupes de quatre logements (2 chambres) séparés par des cheminements piétons et ,enfin, de vingt maisons privatives (4 chambres) de part et d'autre des allées, dont le plan épouse la pente du terrain (chambres aux -1 et -2, avec salle de jeux en relation avec le jardin). 

Malgré l'ampleur du programme, l'étude de la densité, de l'implantation et de l'organisation spatiale des unités bâties parvient à inscrire l'ensemble – unique en son genre à Liège à cette époque – avec discrétion dans le paysage boisé de Cointe.

Thomas Moor

Sources
Archives Parc résidentiel Le Petit Bourgogne.