Musée de l'Art wallon et îlot Saint-Georges

Musées Bureaux

1974 1974
Réalisé

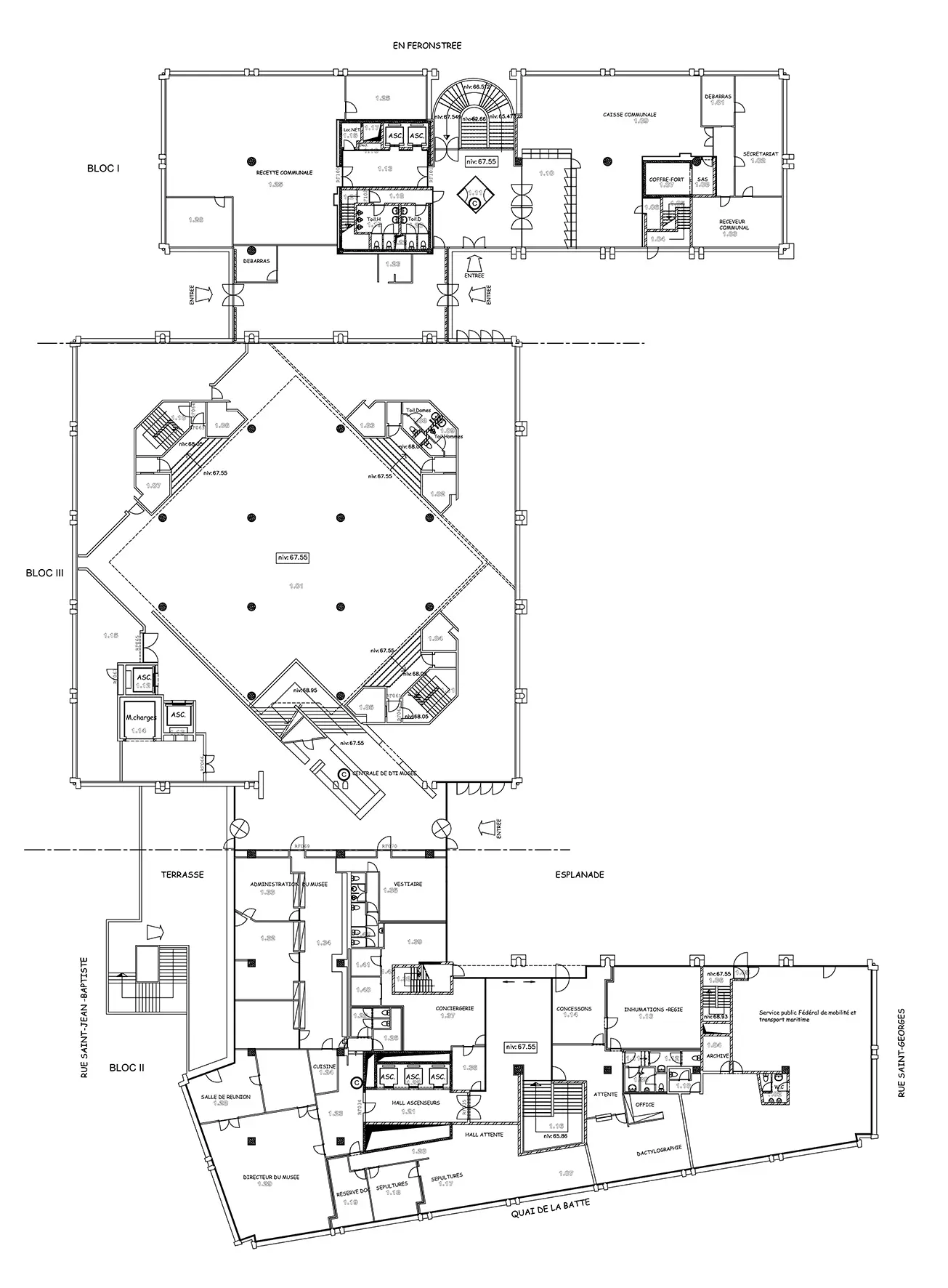
Ce vaste bâtiment est érigé à la place du quartier de l'église Saint-Georges, arasé. Il est composé autour d'un grand carré avec un patio central (musée), sur la dalle du premier étage. En face, un front de façades anciennes, démontées lors des démolitions, est reconstitué. Aux parkings des sous-sols, le rez-dechaussée est occupé par des surfaces commerciales et les cinq étages, en retour formant un U et encadrant le musée, par des services communaux.

Le bâtiment est réalisé en béton architectonique, et ses formes ne sont pas sans rappeler certaines architectures classiques dont il reprend le vocabulaire : toitures à la Mansart, colonnades, cours intérieures, etc. 

D'une architecture brutaliste aux accents passéistes, ce bâtiment domine le quartier par sa stature disproportionnée, sans révéler la finesse de conception de la Cité administrative – à l'exception notable du musée qui suit un cheminement original : les visiteurs accèdent au dernier étage, puis descendent progressivement au travers des collections permanentes, dans l'espace et dans le temps, vers le niveau des expositions temporaires et la sortie.

Paul Hautecler

Sources
Entretien avec Henri Bonhomme, le 20 novembre 2013.
Lejeune Jean, Liège du passé à l'avenir, Liège, s.n., 1964.
Lejeune Jean, L'avenir de Liège et les travaux publics, Liège, s.n., 1964.