Média Rives
Studios d'enregistrements Bureaux
2008 - 2011
2008 - 2011
2008 - 2011
2008 - 2011
Réalisé
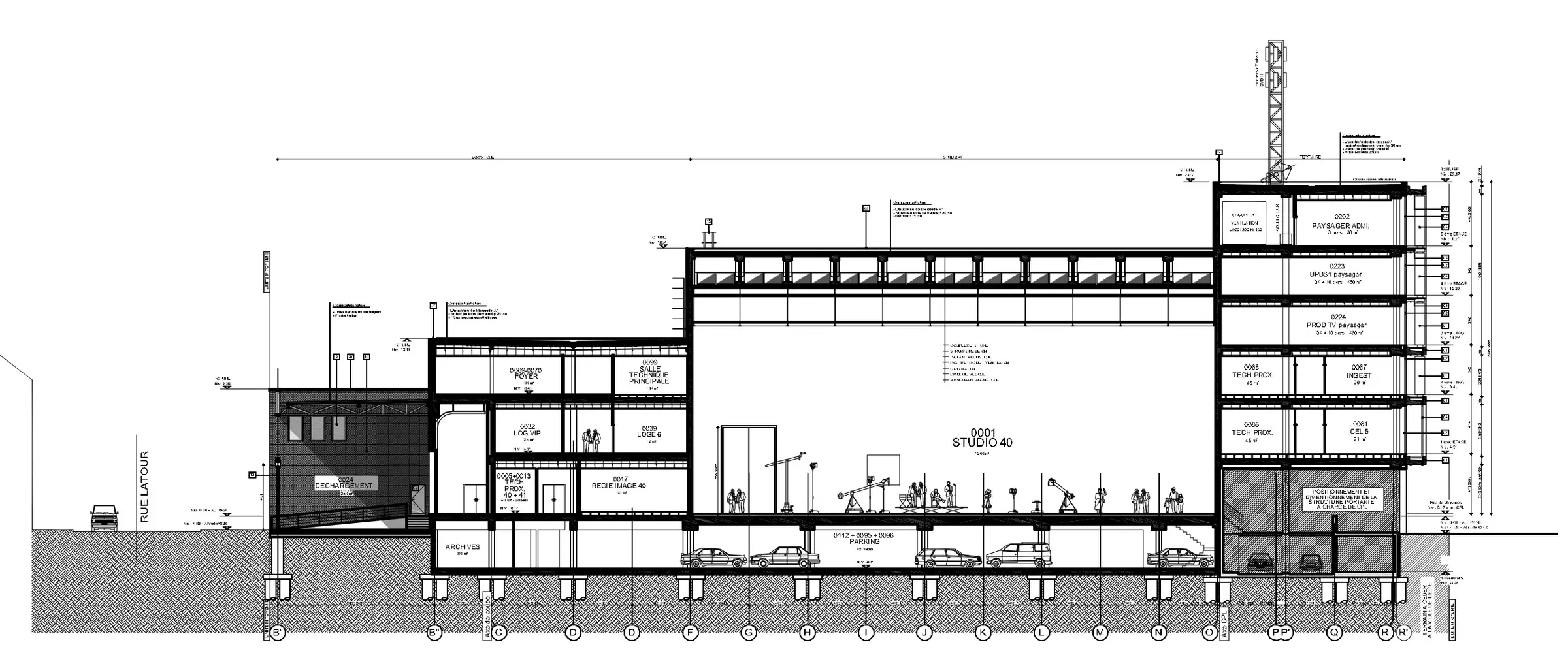
Les locaux du Palais des Congrès loués depuis 1961 étant devenus obsolètes depuis la révolution numérique, la RTBF rejoint la Médiacité pour y installer le site de production de Liège (220 personnes). Contrairement à l'architecture dynamique de la galerie commerciale, le bâtiment, construit selon les principes de sobriété et de transparence, se veut plus pérenne, afin de correspondre à l'image d'un service public et de ne pas rivaliser avec la galerie intensément colorée. Performant du point de vue environnemental (géothermie, cogénération, récupération eau de pluie), Média Rives rassemble des bureaux ainsi que deux studios d'enregistrement : un petit de 400 m² et le studio 40 (1 200 m², 35 x 35 m), qui peut accueillir, grâce à ses gradins modulables, jusqu'à cinq cents spectateurs, soit le plus grand en Fédération Wallonie-Bruxelles.
Marie-Aline Angillis
| Sources |
|---|
| RTBF (Radiotélévision Belge Francophone), Document de conférence de presse Média Rives, 2011. |