Manège de la Caserne Fonck

Salles de spectacles Théâtres / Opéra

2009 2009 2009
Réalisé

Érigée sur le site d'un ancien couvent du XVIIIe siècle, l'enceinte de la caserne Fonck – du nom du premier soldat belge tué en 1914 – a abrité un régiment de cavalerie avant d'être transformée (Eugène Moureau, 1998) pour accueillir l'école des Arts supérieurs et l'institut supérieur d'architecture Saint-Luc (aujourd'hui Faculté d'architecture). 

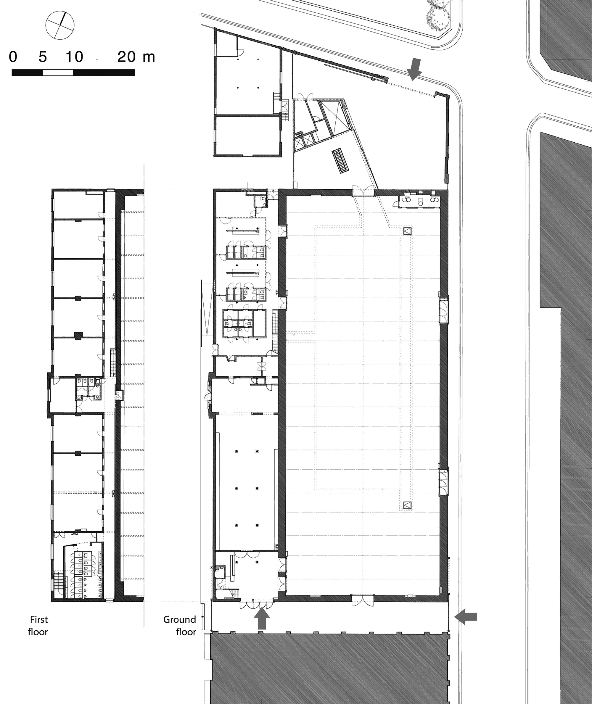
Datant de 1837, la vaste nef en briques du manège équestre est aménagée et équipée en une halle dédiée au spectacle vivant et événements (concerts, pièces de théâtre, défilés de mode, conférences, expositions, etc.) pour le Festival de Liège. La proposition est simple : préserver le génie du lieu et permettre la mise en place de plusieurs dispositifs scéniques. Concrétiser ce concept architectural et donc rendre l'intervention la plus discrète possible a nécessité une maîtrise rigoureuse des techniques et réglementations. Débarrassés des appendices greffés au fil du temps, ses épais murs de briques (1,20 m) sont tronçonnés à la scie métallique pour ouvrir vers le hall et la grande salle. 

Budget serré oblige, le vocabulaire matériel conjugue chape en béton teinté noir dans la masse, linteaux en béton brut, découpes laissées vives pour rendre compte de la chair de l'existant et compléments métalliques pour les parties plus légères. Les stigmates du passé sont laissés apparents. Remarquable, la structure en arc de madriers courbés sur leur plat formant la voûte de la grande salle recouvre près de 1 700 m2, sans points porteurs intermédiaires, et autorise la mise en place de plusieurs dispositifs scéniques, de formats variables. Avec une jauge allant jusqu'à mille six cents places, la nef de 25 x 65 m est intouchée, sauf l'isolation en toiture et le dispositif de désenfumage et de ventilation. 

La boîte noire nécessaire aux spectacles est réalisée par obturation des baies ; un sous-sol technique est creusé pour le stockage du matériel scénique et les circulations. In fine, les abreuvoirs sont transformés en appuis de bancs filants.

Rafaël Magrou

Sources
Henrion Pierre, «Le manège de la caserne Fonck» dans Les Nouvelles du Patrimoine, n° 124, juin-juillet-août, 2009, p.41-42.
«Liège / Le Manège de la Caserne Fonck» dans Les Nouvelles du Patrimoine, n° 124, juin-juillet-août, 2009, p.41-42.
Magrou Rafael, «Chirurgie historique» dans A+, n° 228, février-mars, 2011, p.42-46.