Maison Withofs

Habitation unifamiliale

2004 - 2012 2004 - 2012
Réalisé

Un atelier d'architecture avait été bâti en 1982 sur cette parcelle exiguë et à forte déclivité, dans le prolongement de la maison à palier de l'architecte Ph. Stenne (Chemin des Cèdres, 41). 

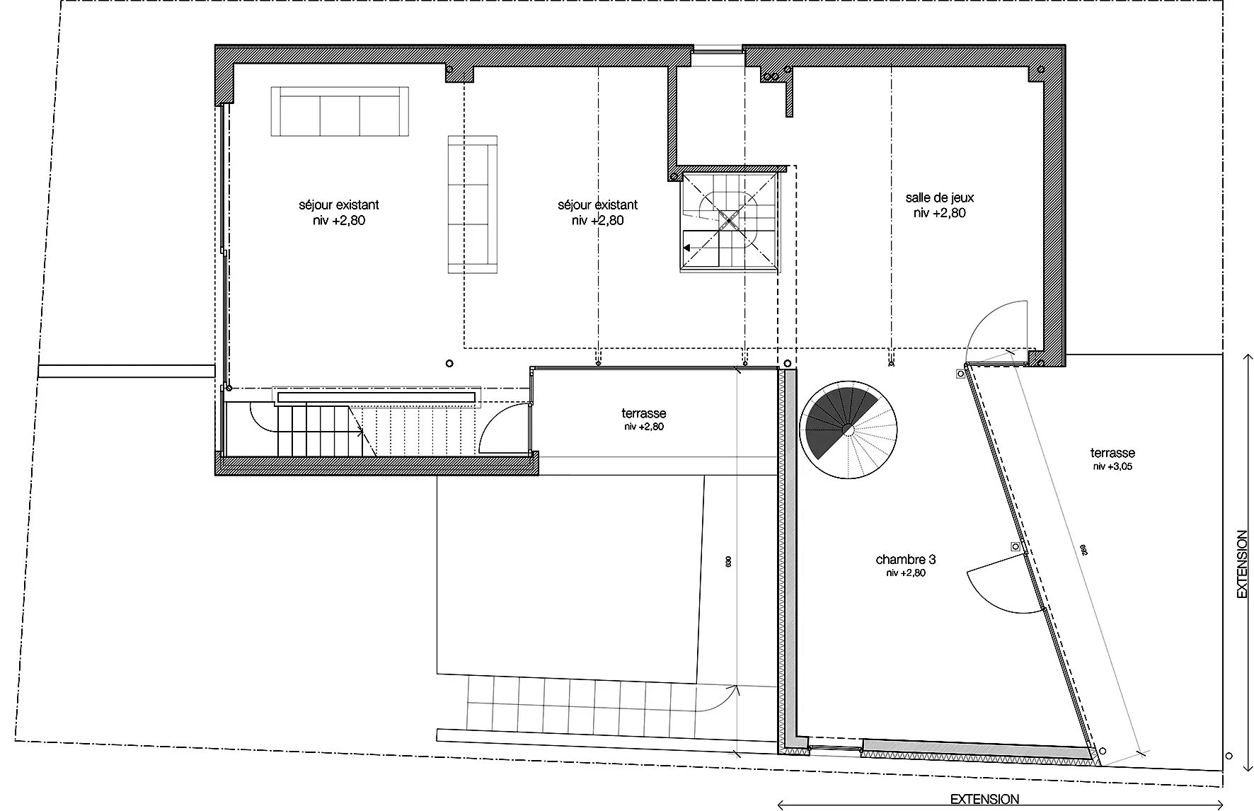
Ses occupants y vivaient sur un seul niveau, comme dans un appartement. L'extension de briques foncées a permis de réorganiser les espaces de vie sur plusieurs étages et de modifier l'accès à la maison. 

Implantée parallèlement à la rue, elle surplombe et englobe l'habitation initiale. La distribution des fonctions est inversée : les chambres se trouvent au rez, le premier est dédié au séjour, tandis que la cuisine s'épanouit dans les arbres, au second étage, en relation avec une terrasse aménagée sur le volume préexistant. Les ouvertures principales sont latérales et offrent des vues sur la végétation. 

Une seconde annexe, plus basse, a été construite à front de rue (2012).

Anne-Catherine De Bast

Sources
PMAA, en ligne http://www.pierremonseuarchitecte.be/, consulté le 01/01/2000.