Maison Herbecq

Habitation unifamiliale

1989 - 1991 1989 - 1991
Réalisé

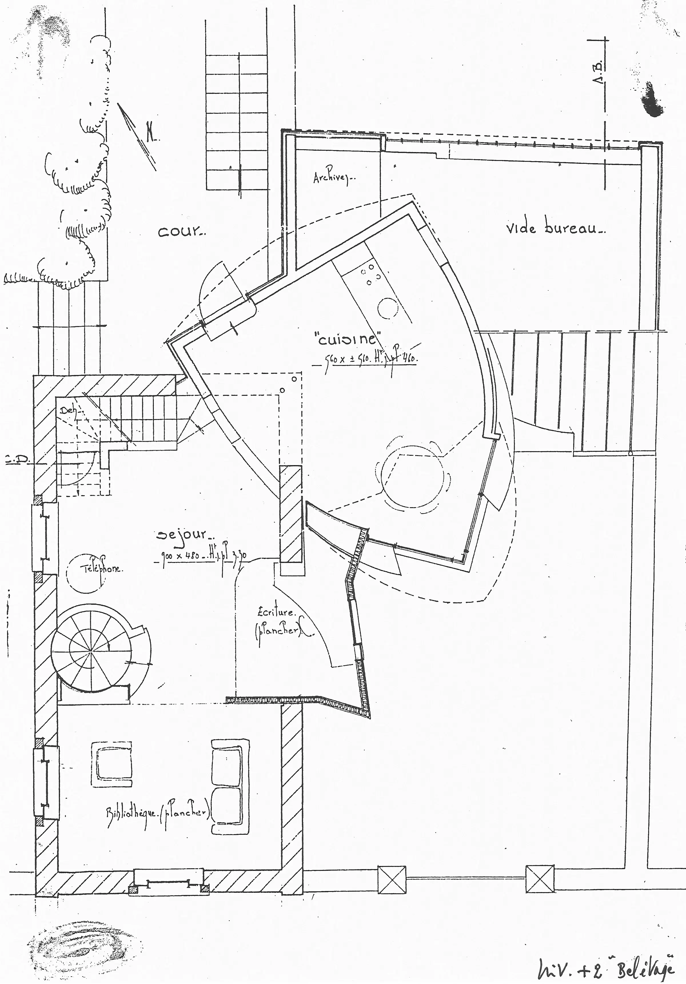
Construite au XIXe siècle en contrebas de l'hôpital des Anglais, au cœur d'une oasis boisée à deux pas du Cadran, l'ancienne morgue offre l'occasion à l'architecte, dix ans après l'expérience de Jehay, de mener un second chantier en autoconstruction dans un lieu hors du commun pour y loger habitation et atelier d'architecture. N'attendant qu'à être transformé, le volume sobre et austère, sans caractère particulier, permet un travail en volumétrie, stimulé par la double déclivité du terrain. 

Comme à Jehay, l'architecte privilégie le bois, mais, à l'esthétique du patchwork – qu'il considère, avec le recul, comme ayant émané davantage de l'esprit du temps que de sa véritable personnalité –, il substitue un langage sculptural, animé par l'expression brute du bois de cèdre, du zinc et du béton. À l'est du parallélépipède existant, dont la toiture est surélevée par un bandeau de verre afin de permettre l'ajout d'un niveau, se greffe un volume perpendiculaire à toiture cintrée, tapi sur la pente boisée du terrain. Liant ces deux volumes, un troisième, oblique et orienté plein sud, se veut rassembleur, à travers ses murs et sa toiture courbes. 

Nouveau visage de la maison, il offre au passant l'image d'un corps qui se dresse, interpellant et énigmatique, comme ces masques africains dont la symétrie et les plans « coupés à la hache » inspirent les meubles contemporains de l'architecte. Comme pour ceux-ci, l'expressivité découle ici de la mise en exergue de la structure, des assemblages et de la mise en œuvre, dans une composition concrète, alliant rigueur, force et poésie.

Claudine Houbart

Sources
Bernard Herbecq, architecte à Liège, Marchienne, 2003.
Loze Pierre, «Quatre architectes belges» dans A+, n° 120, 1993.
Antoine Luc, «Architecture parlante» dans Techniques et Architecture, n° 407, avril, 1993, p.53-55.