Maison Dubois

Habitation unifamiliale

1962 - 1963 1962 - 1963
Réalisé

Aujourd'hui fortement altérée, cette maison est construite entre mitoyens, sur une étroite parcelle avec le sud à rue. Elle profite d'une très belle vue sur un parc planté de grands arbres (château Nagelmackers, AW architectes, 2010). 

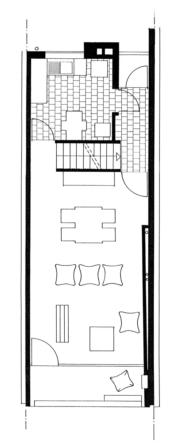
Un carport permet de reculer fortement l'entrée – simple paroi de verre qui contient les pleins de la porte et du vestiaire – et de placer l'escalier aux deux tiers de la profondeur, afin de distribuer les pièces des étages de manière optimale. 

Au bel-étage, le séjour se projette sur les frondaisons du parc grâce à sa façade entièrement ouverte, tout en conservant l'intimité familiale par la remontée du garde-corps, en briques, jadis simplement badigeonnées de blanc, comme la façade. 

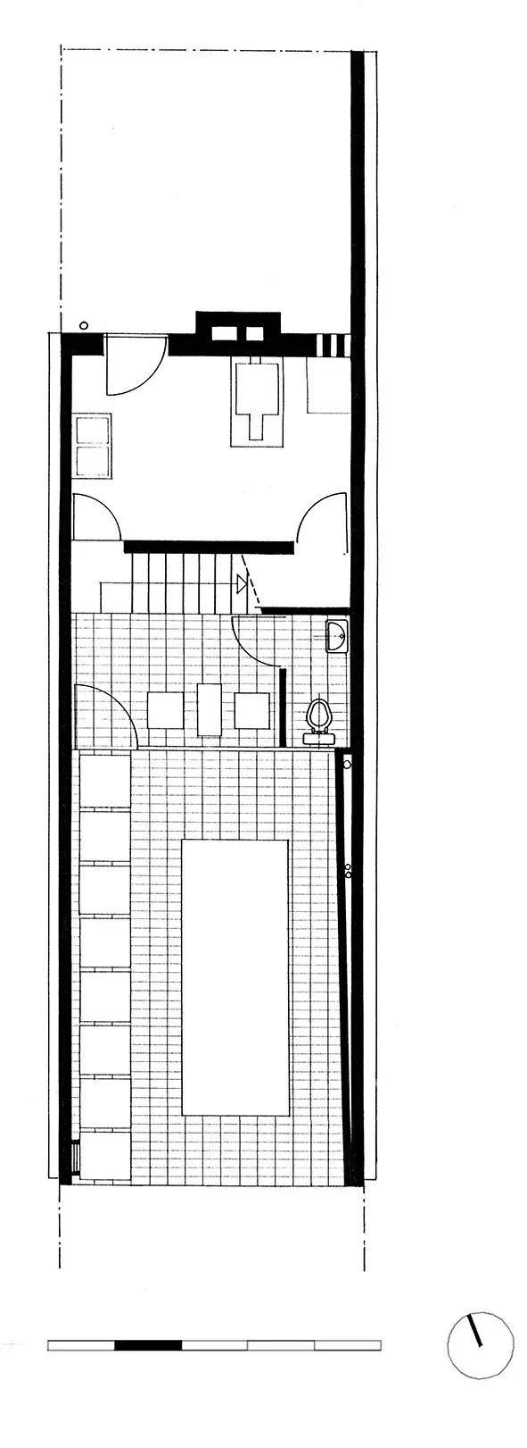
Au second, l'escalier débouche sur une pièce centrale éclairée par la toiture et dévolue aux jeux, à la couture ou au bricolage. Fort de ses premiers travaux, et selon ce qui deviendra son habitude, Charles Dumont tire un parti maximal des situations contraignantes.

Alain Richard

Sources
Richard Alain, Charles Dumont : L'esprit d'un architecte, Bruxelles : Prisme Editions, p.116-117.
«Maison Dubois à Angleur» dans La Maison, n° 7, juin, 1965, p.4-5.
Liège. Architectures de la ville. Cartes et répertoires. HLM fondation d'architecture et d'urbanisme et Ville de liège, 2006, n° 358..