Maison Cabolet

Immeuble à appartements

1947 - 1948 1947 - 1948
Réalisé

Cette petite réalisation, une des premières référencées par E.G.A.U., est caractéristique de l'immédiat après-conflit : la reconstruction grâce aux subsides pour dommages de guerre. 

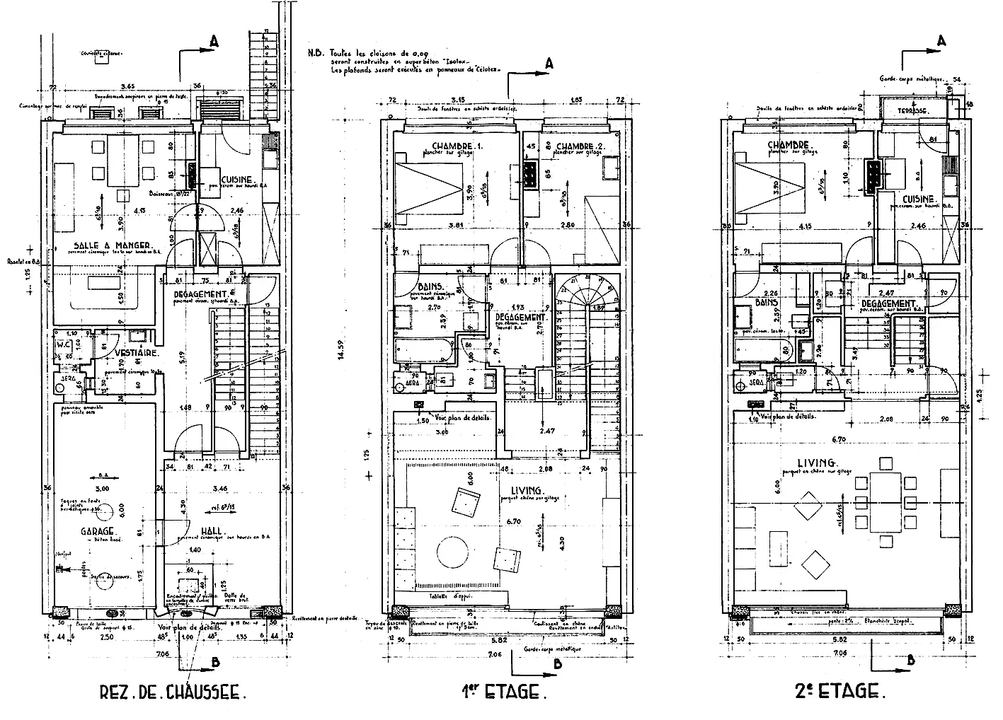
Dans ce cas, il s'agit d'un volume abritant deux appartements distincts. La particularité réside, ici, dans la maîtrise de leur superposition, avec un travail ingénieux de la cage d'escalier – décalée par une demi-volée de marches pour permettre l'accès à chaque logement – qui offre de la générosité aux espaces intérieurs. 

La façade, aujourd'hui en partie modifiée, présente une écriture très retenue et élégante où la discrétion des détails confère un sens de sobriété à l'architecture, propre au langage de Lhoest et annonçant sa production à venir. Cette attitude volontairement anti-ostentatoire se démarque de la conception de l'habitat d'avant-guerre et qui persistera après 1945, comme la maison Hanne de G. Dedoyard, qui lui est contemporaine.

Maurizio Cohen

Sources
Strauven Francis & Bekaert Geert, La construction en Belgique 1945-1970, Bruxelles, Confédération nationale de la construction, Ministère des Travaux publics, 1971, p.304-305.