Maison Berhaut-Streel Marchal

Habitation unifamiliale

1998 1998 1998
Réalisé

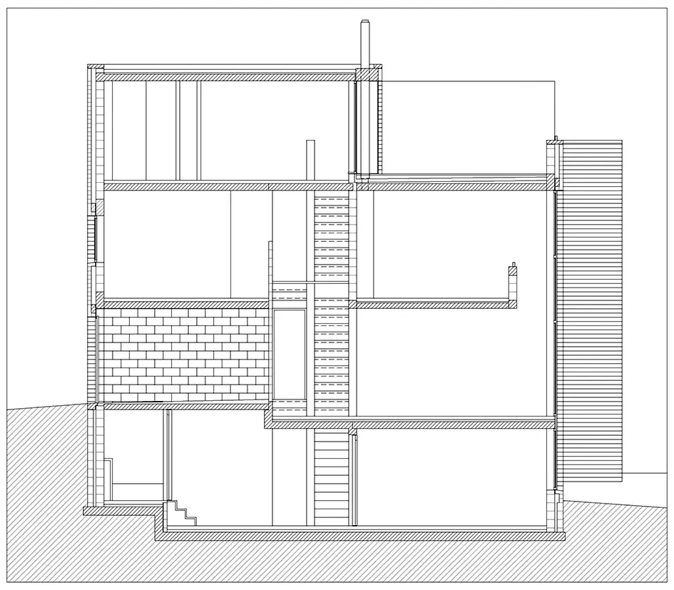
Implantée sur un terrain en forte déclivité, cette habitation – volontairement limitée à 5,70 m de façade à rue –  use habilement de sa compacité et de sa position, en fin de rangée, pour s'offrir une façade latérale. L'entrée s'y positionne et ouvre sur un hall, d'où l'escalier s'élance d'un trait, perpendiculairement, et mène au salon en mezzanine. 

Ajoutant de la flexibilité au projet, un deuxième accès, placé sous la passerelle du premier, mais accessible par l'escalier public qui jouxte le terrain, rend les locaux du bas indépendants. 

À l'arrière, une grande terrasse couronne le second volume qui s'ouvre généreusement sur un bosquet et bénéficie de vues sur la ville. L'unité volumétrique est confortée par l'unité chromatique des briques, joints et soubassements de grès pressé rouge.

Xavier Folville

Sources
«Habitation à Liège. Marchal et Berhaut-Streel» dans Terre cuite et construction, n° 97, Bruxelles : Fédération Belge de la Brique, avril-mai-juin, 2001, p.6-7.
Resseler Marie, «Circulation verticale» dans Gaël Maison, n° 4/0040, juin, 2002, p.78-84.
«« Le retour à la grande ville. Une symphonie de briques rouges, de verre et d’aluminium »» dans Reynaers aluminium. Info, n° 24, Duffel (Belgique), décembre, 1999, p.10-11.