Institut de Génie Civil de l'Université de Liège (auj. Génie civil)
Jalon XX
Bâtiment universitaire
1936
1936
Réalisé
Très sobre dans sa conception, l'Institut de génie civil est sans doute le monument principal du site, dont Henry Van de Velde soulignera « l'exceptionnelle valeur ».
Conçu par Joseph Moutschen, professeur à l'Académie royale des Beaux-Arts, il abrite également les Départements d'hydraulique, d'architectures civile et industrielle, d'exploitation des mines, de topographies et d'exploitation des chemins de fer.
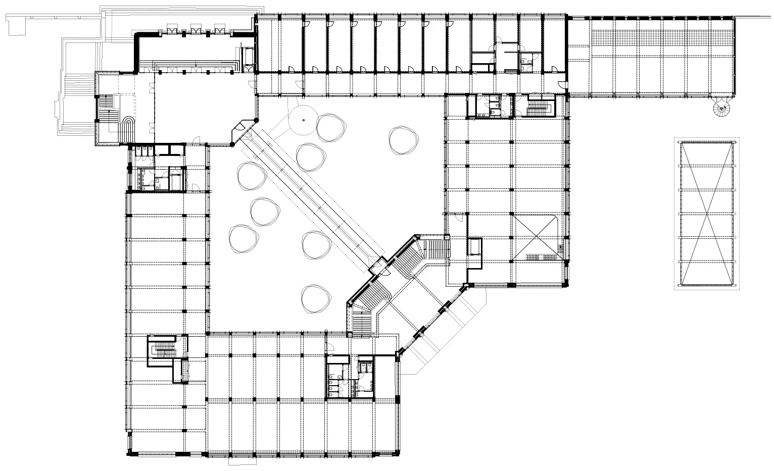
Construit sur fondations Franki et en structure mixte – ossature métallique enrobée et superstructure en béton armé –, le bâtiment est remarquable par sa luminosité : tous les locaux (halls d'accès, cages d'escalier, couloirs de circulation, bureaux, salles de cours, auditoires) bénéficient en abondance de la lumière du jour, dans un dispositif spatial ingénieux, à l'exemple du grand escalier éclairé au nord par un châssis unique de 22 m de haut ou de la salle d'exposition du deuxième étage, de 20 m de côté sans support apparent.
En arpentant les 2 ha du bâtiment, l'utilisateur perçoit l'extrême diversité dans l'agencement des espaces, des perspectives et des vues sans cesse renouvelés sur la Meuse et le site. Cette apparente complexité est le résultat d'un subtil enchevêtrement de volumes, dont l'expressionnisme géométrique est d'une rare qualité. Le plan du bâtiment est pourtant simple, adoptant la forme d'un carré, auquel se greffe le bâtiment rectangulaire du laboratoire d'hydraulique. Ce carré délimite une cour intérieure, occupée par deux grands auditoires superposés qui la traversent en diagonale. Aux deux extrémités, les angles accueillent entrées et circulations verticales, dont la finition intérieure est remarquable.
Le grand hall côté Meuse affecte la forme d'un cube, celui donnant sur le site est un parallélépipède rectangle dressé en hauteur. Pour rythmer l'horizontalité de l'ensemble, l'architecte crée des effets d'élancement par une série de traits verticaux : côté Meuse, quatre piliers partent du perron d'accès, prenant appui sur le voile de béton de l'auvent ; de l'autre, la verrière de la cage d'escalier est traversée sur toute sa hauteur par un pan de mur aveugle. Aux façades latérales, les travées sont soulignées par des piliers en relief.
Le bâtiment a été réhabilité par Baumans-Deffet en pôle d'entreprises (2017).
(voir aussi : Centrale thermoélectrique et laboratoire de thermodynamique ; Institut de mécanique ; Le Val Benoît ; Institut de Chimie et de métallurgie)
Jean Housen
| Sources |
|---|
| Lemaire Anne-Françoise, Albert-Charles Duesberg, architecte (1877-1951), Université de Liège, Histoire de l'art et archéologie, 1984. |
| «L'éco-reconversion du Val Benoît» dans Focus Archi, n° 3, Kessel-Lo, décembre-janvier-février 2015, 2014, p.68-71. |
| Linze Georges, «Visages de la race : Joseph Moutschen bâtisseur» dans Bâtir, n° 9, Bruxelles, août, 1933, p.328-329. |
| Moutschen Joseph, «L'Institut du Génie civil au Val-Benoît à Liège» dans Bâtir, n° 32, Bruxelles, juillet, 1935, p.258-265. |
| Put Willy, «Les nouveaux Instituts de l'Université de Liège» dans Bâtir, n° 17, Bruxelles, avril, 1934, p.648-649. |
| Campus Fernand, «Construction et restauration de la charpente métallique continue soudée en acier à haute résistance de l'Institut du Génie civil de l'Université de Liège» dans L'ossature métallique, n° 12, décembre, 1948, p.505-519. |
| «La brique, matériau moderne» dans Bâtir, n° 32, Bruxelles, juillet, 1935, p.284. |
| Henri Louis, «Construction et Restauration de la charpente métallique de l'Institut du Génie Civil de l'Université de Liège» dans L'Ossature métallique, n° 2, février, 1949, p.67-80. |
| Linze Georges, «A travers l'oeuvre de l'architecte Joseph Moutschen» dans Bâtir, n° 32, Bruxelles, juillet, 1935, p.280-282. |
| Housen Jean, «Le Val-Benoît, témoignage majeur du Modernisme à Liège» dans Les Cahiers de l'Urbanisme, n° 73, septembre, 2009, p.52-56. |