Immeubles du Foyer jumétois
Jalon XX

Logement public

1930 1930
Réalisé

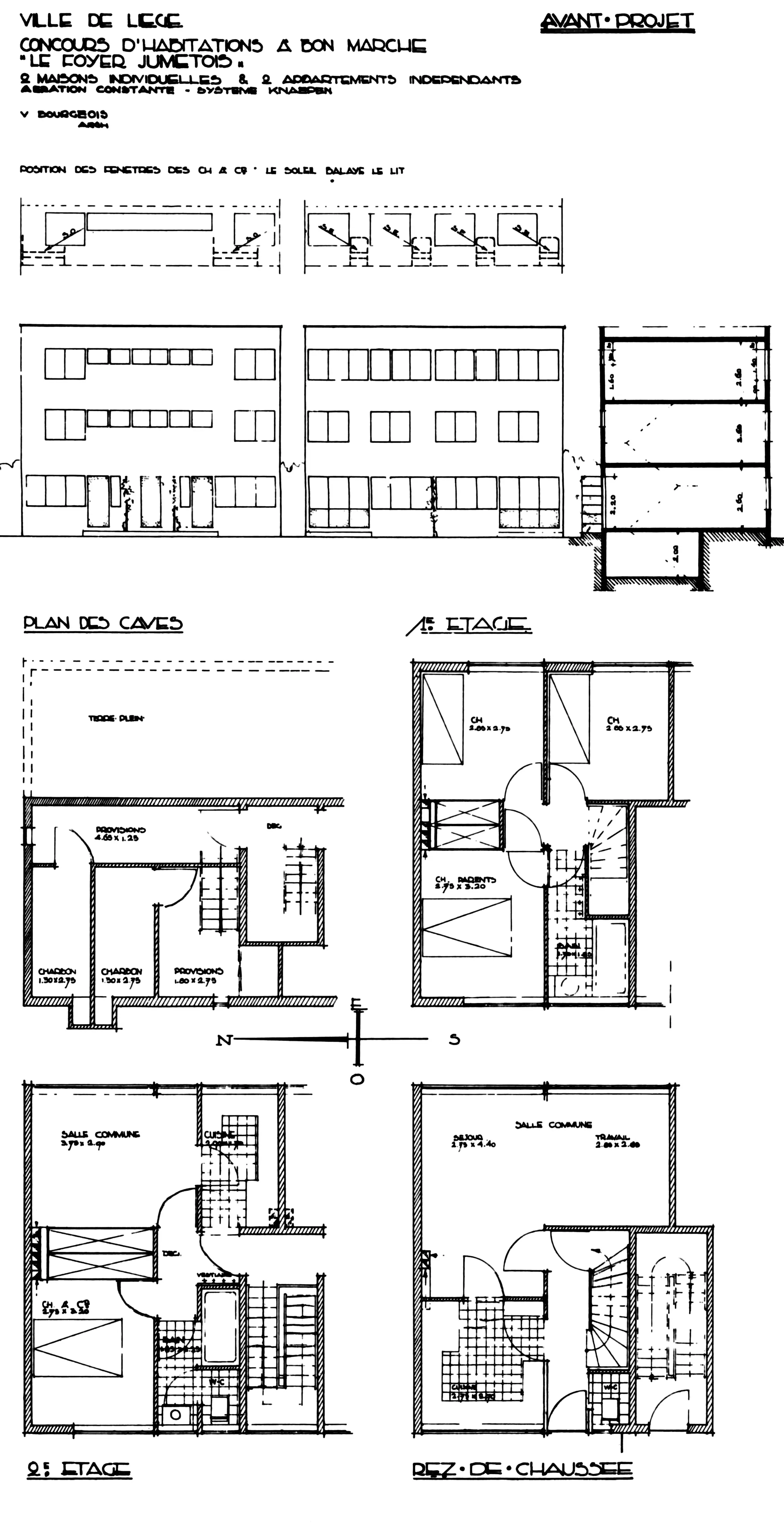
Chacun des deux immeubles comporte une maison unifamiliale sur deux niveaux, surmontée d'un appartement accessible par un escalier indépendant. 

Le système constructif est tout à fait inédit à Liège. Le procédé Farcométal repose sur un treillis métallique solidement fixé à l'ossature en acier que l'on recouvre ensuite de ciment Portland. 

Le caractère monolithique de l'ensemble est une garantie de robustesse dans une région soumise aux mouvements de terrain provoqués par la présence de galeries minières. Derrière le mur extérieur, l'architecte crée un vide, servant d'isolant thermique où il dissimule toutes les canalisations. 

Au niveau esthétique, l'ensemble se distingue par sa rigueur et le rejet de toute ornementation. L'absence d'ouverture sur les façades latérales laisse penser que l'architecte a laissé la possibilité de reproduire cette maison sur les parcelles voisines, comme en témoigne le photomontage publié dans la revue française L'Architecture d'aujourd'hui en 1931.

Sébastien Charlier

Sources
Henvaux E., «Belgique, le problème du logement populaire» dans L'Architecture d'aujourd'hui, n° 9, décembre, 1931, p.43-47.
Bourgeois Victor, «Habitations minima» dans L'Emulation, n° 11, Bruxelles, novembre, 1931, p.391-414.