Immeuble de bureaux et de vente avec entrepôt Fenwick
Bureaux Magasins Atelier de confection
1958 - 1959
1958 - 1959
Réalisé
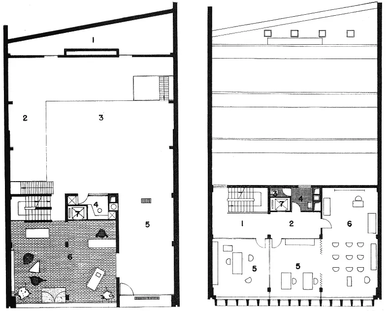
Construit sur deux parcelles de maisons détruites pendant la guerre, l'immeuble est un exemple de construction d'avant-garde, identifié comme tel dès 1974 dans le Patrimoine monumental de la Belgique. Son programme articule au rez-de-chaussée un espace de vente et un entrepôt de grand matériel, avec pont roulant pour réparations. Au sous-sol se situe un deuxième entrepôt pour pièces détachées.
Les cinq étages de bureaux sont aménagés avec des parois dessinées par les architectes et les locaux de réception meublés par Knoll. L'immeuble est construit en neuf mois grâce à la préfabrication, en particulier les éléments de façade en béton vibré (panneaux de 86 cm de large) décalés par rapport à l'ossature en béton, garantissant flexibilité dans la pose des cloisonnements.
Le chauffage est assuré avec une technique innovante de rayonnement au plafond par plaques d'aluminium incorporées dans l'enduit et commandées par des sondes extérieures. La façade était surmontée d'un lettrage monumental (disparu).
Maurizio Cohen
| Sources |
|---|
| «Le building "Fenwick" quai des Ardennes à Liège» dans La Maison, n° 8, août, 1961, p.259-262. |
| Liège. Architectures de la ville. Cartes et répertoires. HLM fondation d'architecture et d'urbanisme et Ville de liège, 2006, n° 330.. |