Îlot Saint-Michel (B)

Bureaux Magasins

1995 - 1999 1995 - 1999 1995 - 1999 1995 - 1999 1995 - 1999
Réalisé

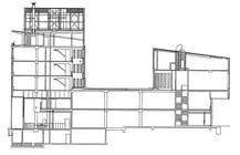
Épousant la courbure de la rue, le bâtiment (10 000 m²) occupe une parcelle triangulaire qui accueille surfaces commerciales et bureaux, dont le plafond du hall d'entrée est investi par Jean-Pierre Pincemin (détruit). Depuis la place Saint-Lambert, il se fond dans son entourage en adoptant le gabarit et les matériaux de ses voisins, mais il se distingue par le soin accordé à la modénature et par l'apport dynamique du jeu visuel proposé par Léon Wuidar sur les impostes des vitrines. 

Depuis le coeur et les jardins suspendus de l'îlot, un grillage minimaliste de Dan Van Severen permet de découvrir le recouvrement de zinc à l'arrière du bâtiment où se dresse une tourelle concentrant les circulations et les gaines techniques.

En 2007, l'architecte achève avec la même rigueur un programme similaire à Maastricht (coll. Jo Coenen, 2007).

Julie Hanique

Sources
Tsien Li Mei, «Des architectes témoignent... Bruno Albert» dans Les Cahiers de l'Urbanisme, n° 28-29, Février, 2000, p.111.
Cortembos Thérèse, Liège, Liège, Mardaga, 2004.
Liège. Architectures de la ville. Cartes et répertoires. HLM fondation d'architecture et d'urbanisme et Ville de liège, 2006, n° 435..
Henrion Pierre, «L'îlot Saint-Michel (re)naissance» dans Les Nouvelles du Patrimoine, n° 85, janvier-février-mars, 2000, p.37-39.
Année Prix Distinction
2000 Prix de l'Urbanisme de la Ville de Liège prix du jury