Hôtel Verlaine

Habitation unifamiliale

1910 1910
Réalisé

L'architecte réalise ici pour le chausseur Verlaine l'une des réalisations Art nouveau de Liège les plus remarquées a posteriori, avec un classement comme monument dès 1984. Cet ensemble se compose d'une maison avec annexe et d'un vaste entrepôt à l'arrière. 

La façade de la demeure fait la part belle à la décoration et à la polychromie : briques vernissées blanches, mosaïques multicolores figurant des motifs floraux, ferronneries ouvragées, etc. 

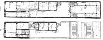
Comme c'est souvent le cas chez Maurice Devignée à partir de 1910, les éléments décoratifs typiquement Art nouveau sont rejoints par des détails empruntés à d'autres styles historiques (néo-Renaissance, néoLouis XVI), comme en témoigne le détail de la porte d'entrée en bois. La structuration de l'intérieur de l'habitation est, par contre, tout à fait traditionnelle (salon, salle à manger, cuisine en enfilade).

Édith Culot

Sources
Charlier Sébastien, L'architecture Art nouveau à Liège, Liège : Université de Liège, Faculté de Philosophie et Lettres. Section Histoire, 2000, p.154-155.
Liège. Architectures de la ville. Cartes et répertoires. HLM fondation d'architecture et d'urbanisme et Ville de liège, 2006, n° 179..
Cortembos Thérèse, Liège, Liège, Mardaga, 2004.