Hôtel Torrentius
Jalon XX

Bureaux

1978 - 1981 1978 - 1981
Réalisé

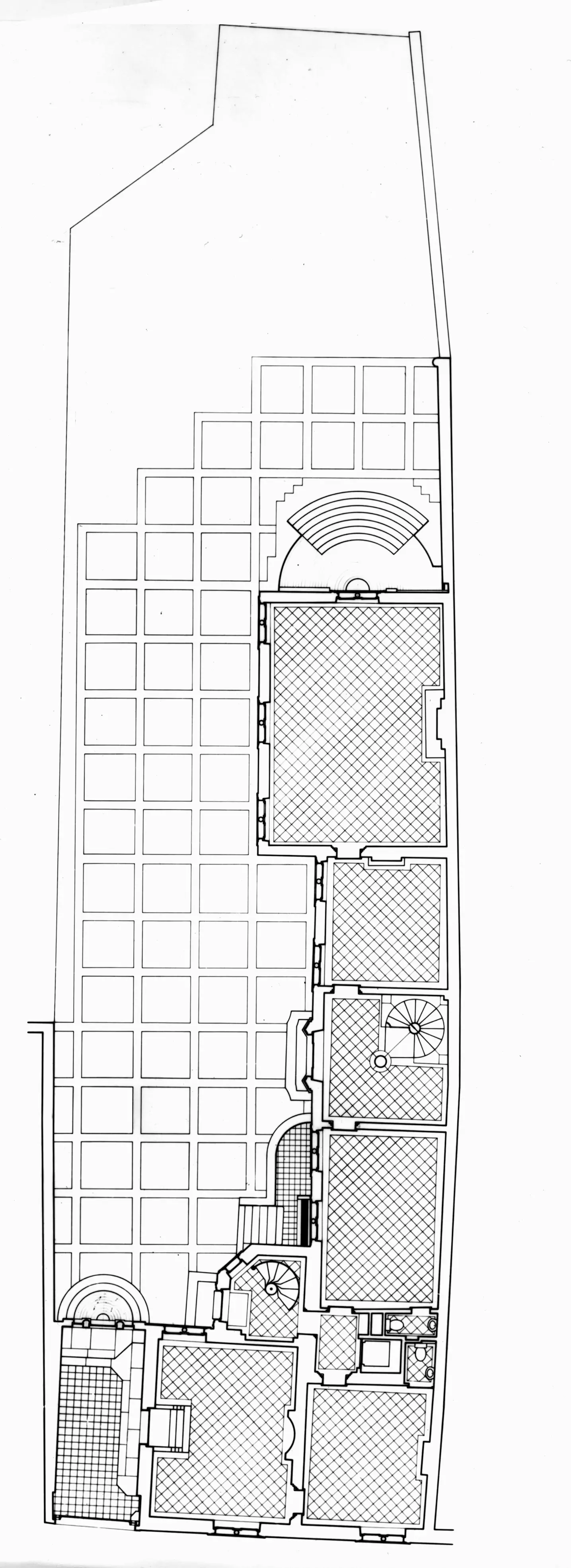
Oeuvre de Lambert Lombard (XVIe siècle), l'hôtel Torrentius, sauvé de la démolition par son classement, est acheté par Charles Vandenhove en 1978 pour y installer son atelier d'architecture. 

Le projet constitue un tournant dans la carrière de l'architecte : au contact des compositions Renaissance de son ancêtre, il y renouvelle son langage, substituant au brutalisme et au structuralisme des deux décennies qui précèdent un classicisme stylisé qui accompagnera ses productions ultérieures, telles que les rénovations du Balloir ou du quartier Hors-Château. Se substituant à un modèle plus épuré, jugé trop évident, la croisée en fonte – où la traverse, évoquant une corniche, est prise entre deux colonnes classiques et présente un motif de ziggourat inversée – sera souvent imitée, de même que les compositions figurales sur la base du carré, ornant les nouvelles portes. 

L'intérieur consacre la collaboration de l'architecte avec des artistes, singularisant les espaces par le traitement des plafonds, voûtes et lambris en dialogue avec les quelques fragments de décor ancien conservés. 

Au-delà de son rôle de catalyseur dans la carrière de l'architecte, le projet, considéré, au moment de son achèvement, comme exemplaire en matière de réhabilitation patrimoniale, a marqué de son empreinte nombre de restaurations liégeoises en illustrant une interprétation radicale de l'article 9 de la Charte de Venise (1964), réclamant une lisibilité des interventions contemporaines sur le bâti ancien. L'architecte réhabilite en 1994 l'hôtel de Grady voisin. 

Claudine Houbart

Sources
Mézil Éric, Charles Vandenhove: art in architecture, Gand, Ludion, 2005.
Colman Pierre & Bekaert Geert, Hôtel Torrentius. Architecture pour Architecture. Lambert Lombard 1565 - Charles Vandenhove 1981, Bruxelles, Édition du Ministère de la Communauté française, 1982.
«Hôtel Torrentius à Liège» dans A+, n° 74, janvier-février, 1982, p.7-11.