HELMo Campus Guillemins
Autres bâtiments universitaires / hautes écoles
2010 - 2013
2010 - 2013
2010 - 2013
2010 - 2013
Réalisé
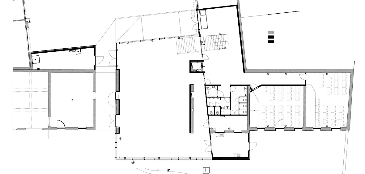
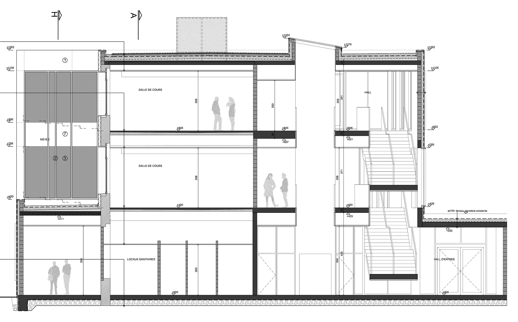
Le campus rassemble les filières économiques de la Haute École, autrefois dispersées, sur le site de l'école Sainte-Marie. L'objectif visait à restructurer une ancienne caserne militaire en pôle d'enseignement (9 classes de 50 places, 2 de 120) et à créer un bâtiment évolutif, facile à adapter aux aménagements futurs.
L'ancienne bâtisse et ses éléments structurels ont été conservés, autour d'un nouvel axe vertical de distribution (escalier, ascenseur) éclairé zénithalement et adapté à la desserte des ailes sud et est en projet. Accueillant une grande salle polyvalente vitrée, le rez-de-chaussée lie les deux cours existantes et accès au site (rue du Vieux Mayeur). P
our compenser l'aspect urbain du quartier, le caractère naturel du site, en intérieur d'îlot, a été renforcé par le choix des matériaux : menuiseries en bois, toitures végétales, briques anciennes apparentes et béton brut. L'ensemble s'inscrit dans une dynamique durable (orientation optimale des classes, isolation extérieure, ventilation double flux et free cooling).
Anne-Catherine De Bast
| Sources |
|---|
| «HELMo Campus Guillemins» sur le site Luc Nelles Architectes Associés, en ligne http://www.luc-nelles.be/projets/batiments-publics/helmo-campus-guillemins, consulté le 01/01/2000. |