Complexe social de la Cité de Droixhe
Jalon XX
Commissariats de police Autres batiments publics et communautaires Crèches Ecoles maternelles Ecoles primaires Bibliothèques, centres de documentation, centres d'archives Maisons médicales
1950 - 1968
1950 - 1968
1950 - 1968
1950 - 1968
1950 - 1968
Réalisé
En accord avec les principes modernistes promus par les Congrès internationaux d'architecture moderne (Ciam) et diffusés parmi les jeunes générations des architectes progressistes d'après-guerre, le quartier de logements de Droixhe présente, au centre de sa composition urbaine, un ensemble d'équipements qui doivent servir aux quelque 7 000 habitants prévus.
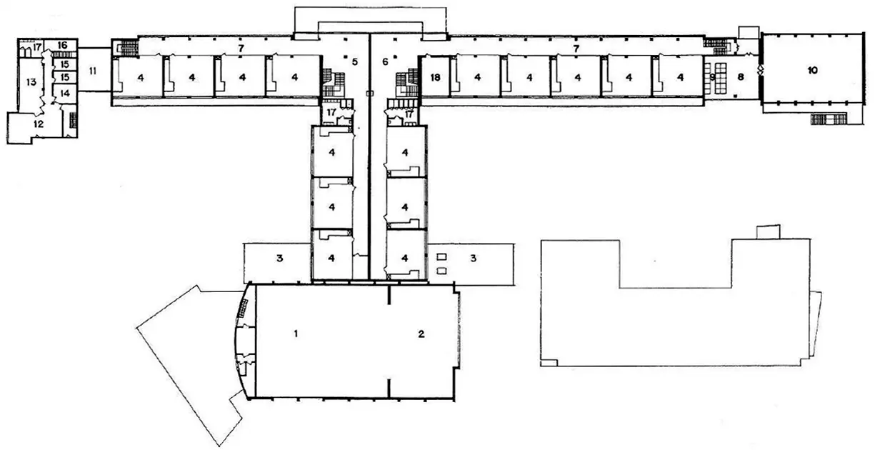
Disposées sur une parcelle en forme de trapèze allongé, les nombreuses fonctions se succèdent et se juxtaposent, offrant à la cité un centre de gravité commun au quartier.
À l'origine, le programme des constructions comporte une école des filles et une autre des garçons (devenues gardienne et primaire) partageant des services communs, une salle des fêtes (500 places), une crèche, un centre de santé, un commissariat et une petite bibliothèque avec section pour enfants. Ces fonctions sont toujours présentes.
Le langage architectural emprunte les solutions aux meilleurs exemples du Mouvement moderne, en ajoutant des détails élégants et maîtrisés : rationalité des dessins, solutions qui échappent à toute tentation de monumentalité malgré la taille des surfaces, ambiance générale de l'expression architecturale, sobre et rationnelle. L'ensemble des structures est en béton, mais chaque élément bénéficie d'un traitement des façades différencié et adapté à l'usage.
Malgré les vicissitudes du complexe, l'ensemble des équipements continue à garder son rôle, mais également une dimension intemporelle de l'architecture grâce aux qualités composites.
Maurizio Cohen
| Sources |
|---|
| Deplus Gérald, Mémoire(s) d'EGAU. Un demi-siècle d'architecture, Liège, ISA Saint-Luc Liège , Architecture, 2001, p.40-45. |
| «Complexe social à Liège : Quartier résidentiel de Droixhe» dans La Maison, n° 11, novembre, 1969, p.462-471. |
| Cortembos Thérèse, Liège, Liège, Mardaga, 2004. |