Centre scolaire Saint-Benoît Saint-Servais

Ecoles secondaires

2004 2004
Réalisé

Depuis 1834, le collège Saint-Servais occupe un intérieur d'îlot de la rue SaintGilles. Au début des années 2000, la direction de l'établissement trouve dans d'anciens bâtiments industriels contigus (Intercom), l'occasion de créer dix-huit classes supplémentaires et un amphithéâtre. 

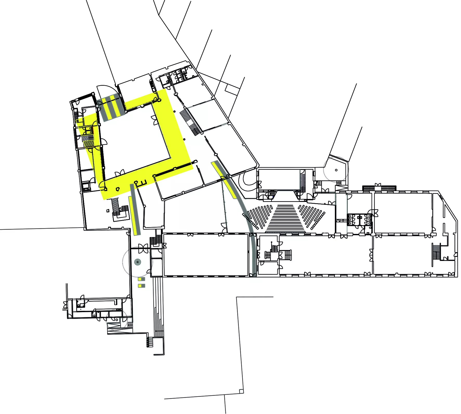
Les architectes font le choix de conserver l'expression industrielle des bâtiments (structure en béton et remplissage en briques, plafonds en béton brut, grandes baies de garage à portes coulissantes, garde-corps en fer forgé), tout en les conformant aux normes énergétiques et de confort actuelles : les châssis en maçonnerie de béton sont doublés par l'intérieur, les panneaux acoustiques partiels laissent le plafond visible. L'une des ailes du bâtiment est surélevée d'un niveau et une agora est créée par l'ajout d'une paroi vitrée. Les interventions plastiques de J. Glibert confèrent au lieu chaleur et lisibilité. Une grande partie des parois vitrées est de couleur orange, réfléchissante ou transparente. Au mur, l'orange fluorescent signale les zones de circulation verticale. Au sol, un carré jaune traverse les murs. Il redresse l'espace et constitue aussi un ferment d'unité. 

Enfin, un tracé noir présent dans l'ensemble du complexe scolaire parachève la signalétique.

Isabelle Ledoux

Sources
Claisse Joël & Loze Pierre, Belgium new architecture 3 : Belgique nouvelles architectures 3 : België nieuwe bouwkunst 3, Bruxelles : Prisme Editions, 2005, p.218-221.
Liège. Architectures de la ville. Cartes et répertoires. HLM fondation d'architecture et d'urbanisme et Ville de liège, 2006, n° 454..
Ledoux Isabelle, «Jeux de couleur : Saint-Benoît Saint-Servais» dans A+, n° 193, avril-mai, 2005, p.48-49.