Atelier Delalleau

Ateliers d'artistes

1997 - 2005 1997 - 2005 1997 - 2005
Réalisé

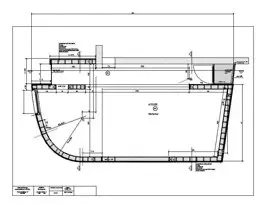
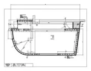
Implanté à l'ouest de la maison mitoyenne dont il constitue l'extension, le volume courbe de l'atelier, bardé d'ardoises de cèdre, repose sur le garage en béton coffré qui fait office de soubassement. Un retrait vitré assure la transition avec l'existant. 

Contrastant avec l'image introvertie offerte à la rue, la luminosité intérieure est amenée par une verrière oblique qui, sous le faîte de la toiture courbe, est invisible depuis l'extérieur. S'y ajoutent, à l'ouest, un bandeau vitré ménagé dans la coque et, côté jardin, une fenêtre, seul contact visuel avec l'extérieur, cadrée sur un pommier. 

La mezzanine, accessible par une échelle de meunier, accueille un bureau et une galerie permettant le contact avec les œuvres de grande hauteur.

Claudine Houbart

Sources
Bois et Habitat, Carnet de route. L'architecture en bois : Région wallonne et alentours, tome 8, Chaumont-Gistoux, 2006.