Service d'études techniques de l'Université (B11)
Bâtiment universitaire
1963 - 1972
1963 - 1972
1963 - 1972
1963 - 1972
1963 - 1972
Réalisé
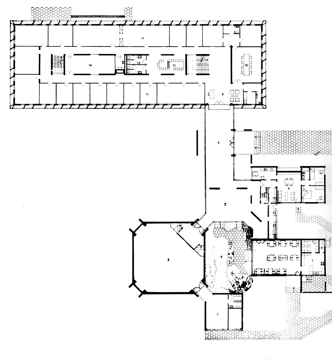
Construit à l'écart, implanté sur un terrain dépourvu de contraintes majeures, le bâtiment – abritant une salle des maquettes – est constitué de deux parties : un parallélépipède de deux étages (services techniques et bureaux) débordant légèrement en porte-à-faux sur un niveau partiellement enterré – conférant une impression de légèreté, voire de flottement, malgré l'aspect massif de la construction – et quatre petits volumes d'un seul niveau. Au centre, le grand hall d'entrée articule le programme.
Le béton armé apparent est le matériau prédominant, traité en finitions différentes. Le grand volume des services est habillé de panneaux porteurs préfabriqués munis d'ailes pare-soleil, en alternance avec des châssis en bois sur toute la hauteur et des bandeaux horizontaux pleins qui le ceinturent. Les petits bâtiments se présentent plutôt avec des surfaces intérieures et extérieures en béton armé nervuré, tout comme la cage d'escalier principale et le hall – dominé par la présence d'une sculpture en relief de G. Collignon, qui se déploie sur les faces internes des voiles en béton.
Maurizio Cohen
| Sources |
|---|
| «Services généraux. 1. Services techniques» dans La Maison, n° 11, novembre, 1967, p.372-373. |
| Cortembos Thérèse, Liège, Liège, Mardaga, 2004. |