Maison Strebelle (B3c)

Bâtiment universitaire

1960 1960
Réalisé

C'est dans le même esprit de communion avec le site que l'architecte coordonnateur Claude Strebelle conçoit son habitation personnelle, à côté des pavillons de l'atelier d'architecture. Il l'occupe avec sa famille jusqu'en 1985, date à laquelle l'Université le défait de sa mission. 

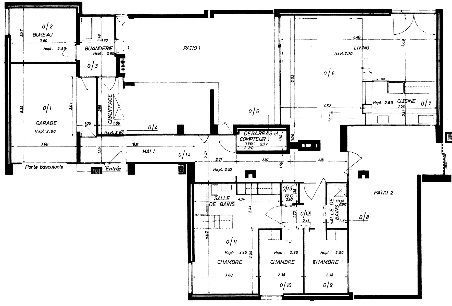
L'utilisation d'éléments de bois préfabriqués est ici réservée à l'intérieur. Les murs extérieurs en blocs de béton forment un quadrilatère divisé en quatre zones. Les espaces de vie (living et cuisine) sont séparés de ceux de repos (chambres et salles d'eau) par un dégagement central, et deux patios, dont les murs blancs reflètent la lumière dans les pièces, complètent l'ensemble. Une aile abritant un bureau, un garage, une buanderie, ainsi que des installations de chauffage, est annexée au volume principal.

Édith Micha

Sources
«Cellule d'habitation au Sart Tilman. Université de Liège» dans Architecture, n° 62, janvier-février, 1965, p.810-813.
Micha Édith, Évolution de l'architecture du domaine universitaire du Sart Tilman, 2000, p.33-36.