Centre de télécommunication RTT
Jalon XX
Bureaux Centre de télécommunication
1969 - 1972
1969 - 1972
1969 - 1972
Réalisé
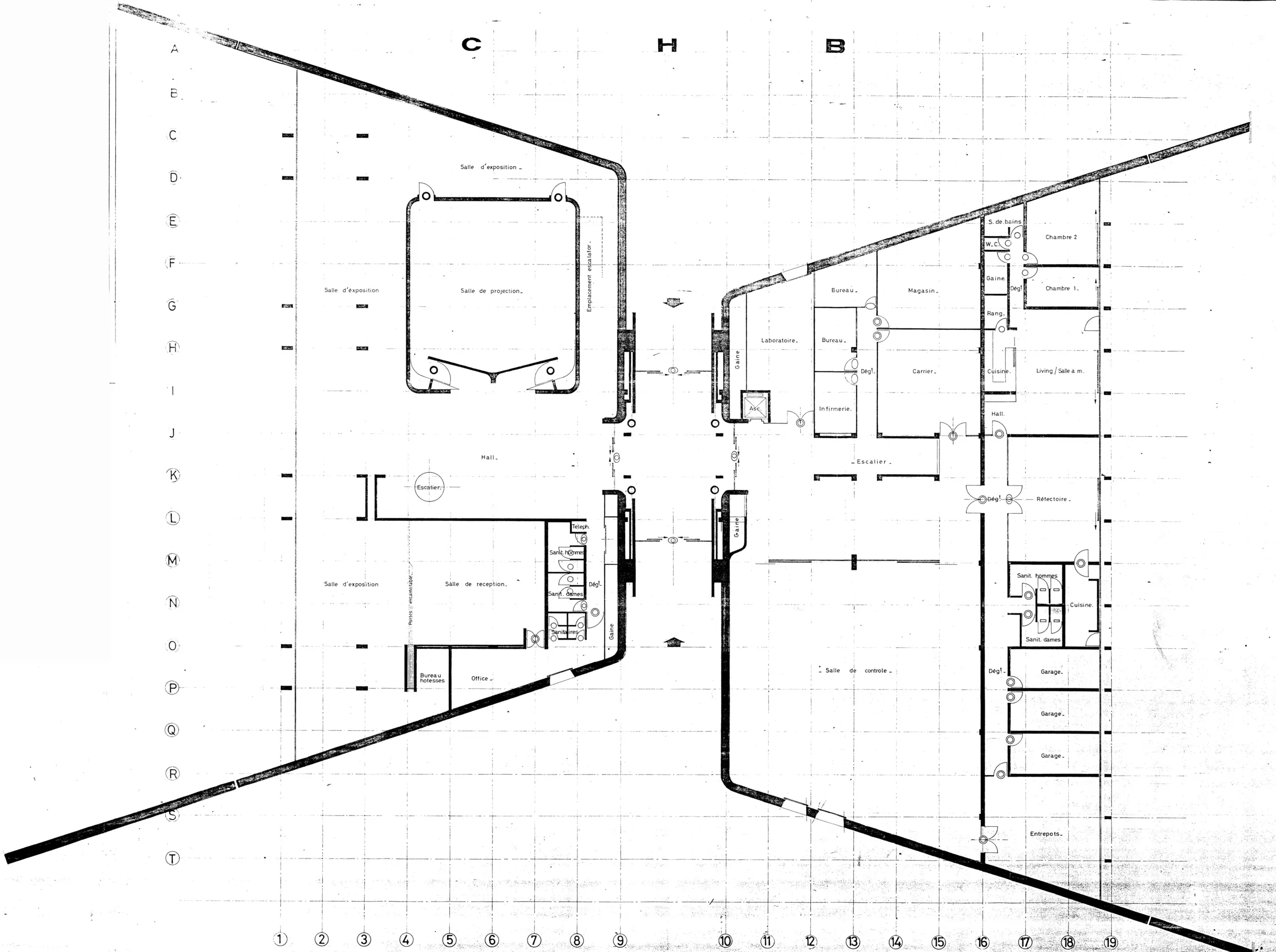
Le site de Lessive est une station terrienne de télécommunications spatiales via les satellites du système Intelsat.
Depuis 1972, cinq grandes antennes paraboliques entre 22 et 35 m de haut et une tour hertzienne de 52 m ont été installées dans cette cuvette entourée d'un site naturel arboré. Leur emplacement détermine la disposition des bâtiments qui servent à la gestion du centre et qui doivent également accueillir un public extérieur pour le familiariser aux techniques de la télécommunication dans un contexte qui mêle activité industrielle, pédagogie et loisirs.
Le projet est confié au bureau de l'architecte Henri Guchez qui fait appel à Jacques Dupuis pour la phase de conception et à Gilbert Capouillez comme collaborateur. La station est constituée de trois bâtiments principaux : celui qui accueille les bureaux et les salles de contrôle qui jouxtent celui destiné aux salles d'exposition, de conférences, et les locaux didactiques et, enfin, la centrale de chauffe, dénommée bâtiment « énergie », pour les installations techniques.
L'accueil du public s'organise dans une auberge située sur un point dominant du terrain à l'écart des antennes. Les trois volumes principaux présentent un profil similaire avec des grandes toitures inclinées à un seul versant de grand effet monumental. Les pentes se terminent à la hauteur des rez-de-chaussée entièrement vitrés et ouverts sur le paysage et les installations. L'implantation des bâtiments est asymétrique. Leur plan en trapèze est accentué par les murs latéraux qui se prolongent vers l'extérieur et génèrent un jeu de perspectives diagonales.
On reconnaît un thème architectural récurrent dans l'œuvre de Dupuis : adoucir les masses et incliner les volumes en soulignant le raccord au terrain et en évitant une composition orthogonale pouvant alourdir la perception. Les toits sont recouverts d'ardoises naturelles et les murs, habillés de petit granit de Soignies avec un appareillage élaboré, sont couronnés par des poutres de ceinture en béton armé lisse.
Pendant les décennies de son fonctionnement, le site a accueilli environ cent cinquante mille visiteurs par an. Revendu en 2007 à un groupe industriel indien, il est racheté, en 2016, par un nouvel investisseur. Le site doit être transformé avec la réalisation d'une cité d'habitations à proximité du site.
Maurizio Cohen
| Sources |
|---|
| Ministère de la Région wallonne, Namur, arrondissement de Dinant. Vol. 22.3., Liège, Mardaga, 1996, p.977. |
| «À hauteur d'arbres. La station de Lessive» dans Architecture Belgium, n° 2, octobre, 1978, p.12-17. |
| Thomaes Jan & Cohen Maurizio, Jacques Dupuis l'architecte, Bruxelles, La Lettre volée, Communauté française de Belgique, 2000, p.322-323. |