Brasserie du Progrès
Habitation unifamiliale Ateliers d'artistes
1911 - 1913
1911 - 1913
1911 - 1913
Réalisé
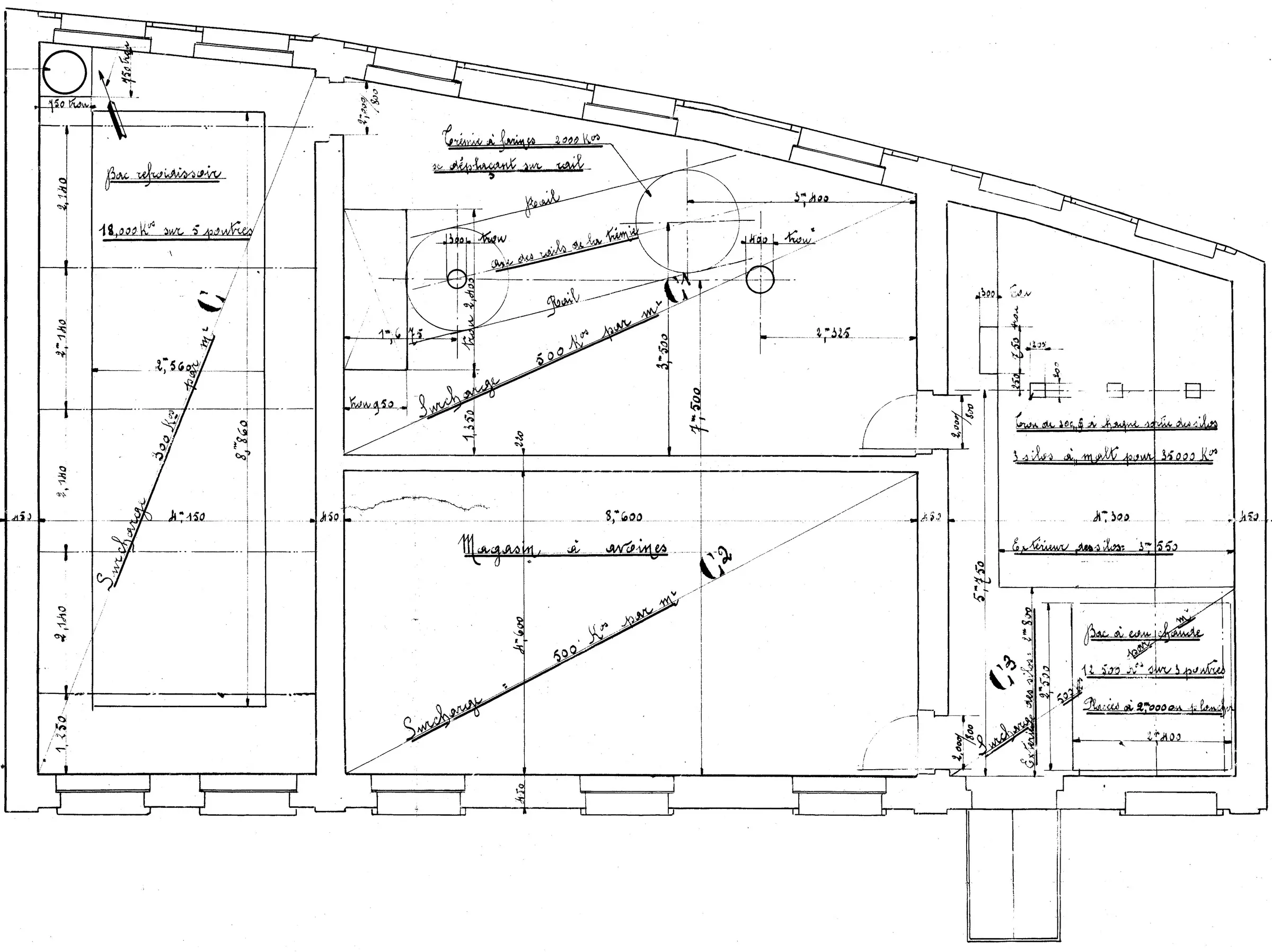
Au début du XXe siècle, l'utilisation de la vapeur permet à l'industrie brassicole de prendre de l'ampleur. Lessines, ville d'eau, compte à l'époque six brasseries. L'une d'entre elles (la brasserie du Progrès) connaît une expansion en 1911, lorsque Philippe Notté-Mollet obtient l'autorisation de construire un bâtiment industriel le long de la Dendre récemment canalisée. Les plans de l'édifice de quatre étages avec caves sont signés par le Bureau technique central situé à Paris, épicentre de l'entreprise Hennebique. La structure intérieure est conçue en béton armé pour recevoir des charges de 1,500 kg/m2 et assurer des portées très importantes : la pièce centrale de 8 m sous plafond atteint 8,60 m de large. Les façades en briques quasiment similaires se divisent en sept travées de baies en plein cintre aux archivoltes retournées (appareillage formant une arcade ne reposant pas sur des impostes) reliées entre elles. Le brassage de la bière prend fin peu avant la Seconde Guerre mondiale et l'établissement qui abrita la résistance reste à l'abandon pendant cinquante ans. La machinerie et l'outillage liquidés y laissent la trace de leur usage : taches d'huile, restes de socles en béton, de rails, formules brassicoles inscrites sur les murs. Depuis 1999, le lieu abrite l'atelier de Xavier Parmentier. Sans l'œil et le savoir-faire de l'artiste, la brasserie nécessitant de multiples restaurations aurait pu connaître une réaffectation immobilière désastreuse, défigurant sa structure. Préservant l'âme du lieu, l'artiste l'a progressivement rendu habitable, grâce à son savoir-faire.
Cécile Vandernoot
| Sources |
|---|
| Le patrimoine monumental de la Belgique. Wallonie.Vol. 23. T. 2. Province de Hainaut, arrondissement de Soignies, Liège : Mardaga, 1997, p.520. |
| Duhaut R., Bières et brasseries dans lentité de Lessines, Lessines : Cercle dHistoire de lentité lessinoise, 1997, p.43-46. |