Institut Sainte-Marie

Ecoles secondaires

Réalisé

L'institut Sainte-Marie de la commune de Rèves voit, depuis une dizaine d'années, les bancs de ses salles de classe se remplir de manière exponentielle. Pour pallier le manque d'espace de plus en plus cruel, la construction d'une extension, installée dans le centre du bourg, en face de l'église, est proposée en 2008. Émerge alors, dans la continuité du bâtiment à rue, un imposant bloc de béton percé de larges fenêtres, quasiment imperceptible depuis l'espace public. 

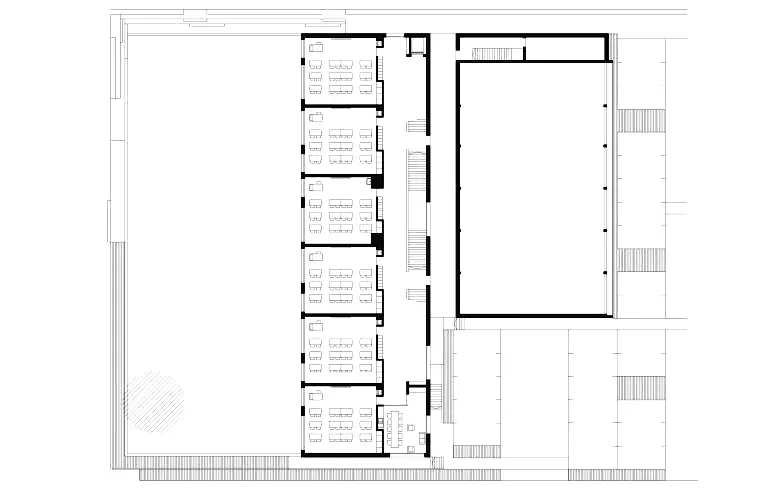
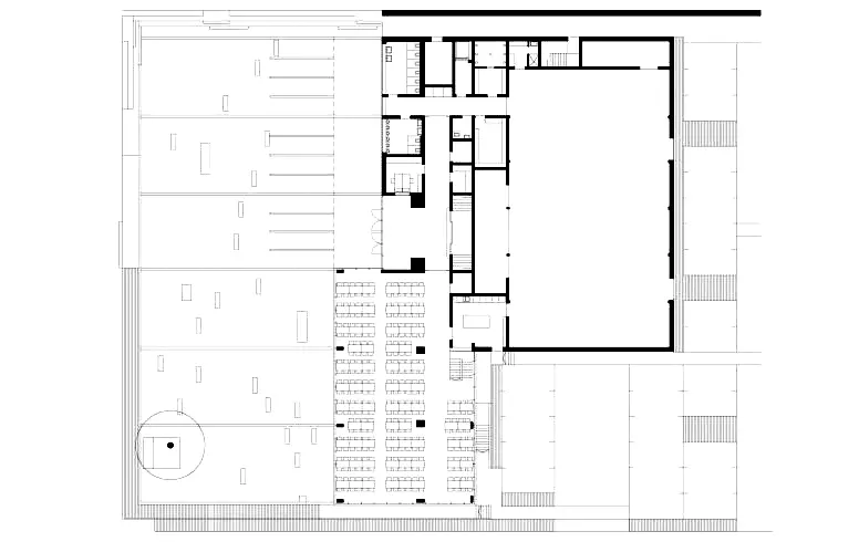
La construction propose un plan clair et efficace dont les spécificités ne sont pas détectables depuis l'extérieur. La façade joue, en effet, sur les rythmes et la générosité des ouvertures, mais ne révèle rien des découpages spatiaux intérieurs. Le rez-de-chaussée, très largement vitré, s'ouvre abondamment vers le parc qui entoure l'institution ; le niveau inférieur, légèrement en retrait par rapport au premier étage, grâce au porte-à-faux, devient un préau sous lequel les élèves peuvent se réfugier en cas d'intempéries. 

L'ensemble simple, gai et coloré s'articule selon deux typologies de programme, les salles de classe, d'un côté, et, de l'autre, les espaces d'interactions, de loisirs et de rencontres. La juxtaposition de ces programmes, souvent incompatibles de par les nuisances que les uns peuvent engendrer au détriment des autres, est rendue possible par une attention particulièrement rigoureuse portée à l'isolation acoustique.

Anne-Laure Iger

Sources
«École secondaire à Rèves» dans Architrave, n° 179, février, 2014, p.54-57.