Justice de Paix et Tribunal du Travail
Palais et cours de justice
2005 - 2013
2005 - 2013
2005 - 2013
Réalisé
Au terme de près de trente ans d'attente dans des bâtiments préfabriqués, la Justice de paix de La Louvière achève sa mutation.
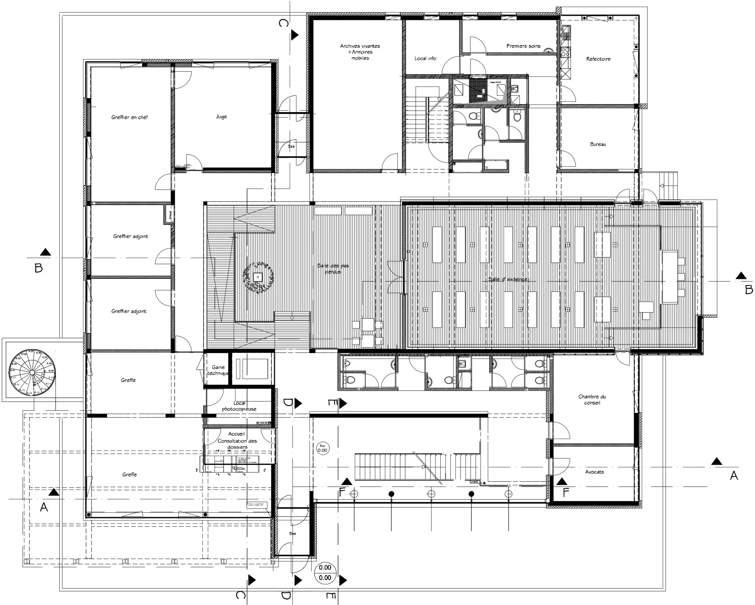
En plein centre du parc Gilsoco – le long d'un des axes pénétrants de la ville où le tissu urbain est composé exclusivement d'habitat mitoyen –, le nouvel édifice s'implante, de manière discrète, en recul par rapport à la voirie et caché par de grands arbres.
Le bâtiment, composé de deux volumes parallélépipédiques, s'inscrit dans le paysage. Posé au sol, le premier privilégie le béton et le verre, tandis que l'autre (salle d'audience), emboîté et surélevé est bardé de bois. La salle des pas perdus desservant l'ensemble de la construction est inondée de lumière zénithale.
Jérémy Cenci
| Sources |
|---|
| Dossier Justice de Paix de La Louvière, Archives de la Régie des Bâtiments, 2012. |
| Cailleaux J.-P., «La Louvière : la Justice de Paix, de l'enfer au paradis» dans La Nouvelle Gazette, 19 octobre, 2013. |
| Une brique dans le centre : Les initiatives positives qui construisent la nouvelle image de la région du Centre, en ligne https://unebriquedanslecentre.com/about/, consulté le 01/03/2015. |