Bureaux Gamma

Habitation unifamiliale Bureaux

2000 2000 2000 2000
Réalisé

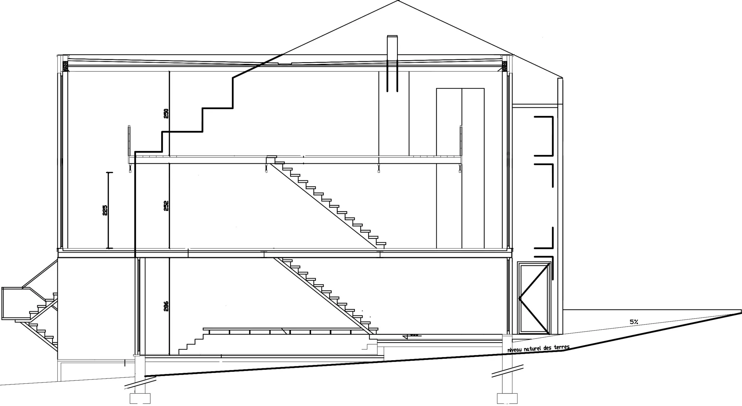
Situé entre l'ancien canal du Centre et une zone verte protégée, le bâtiment abrite trois fonctions qui se distinguent aisément depuis la rue : l'habitation à droite, le bureau d'architecture au rez-de-chaussée et, à l'étage, la salle de réunion qui peut également accueillir des expositions. 

Structurellement en acier, le projet, tout en transparence, offre aux passants une vue traversante de la rue jusqu'aux rives du canal. Cette vaste percée visuelle permet de cadrer la perspective. Le portique, élément fort de la composition de la façade avant, assure la continuité avec le front bâti. 

Pour l'aménagement intérieur, les architectes s'inspirent du passé industriel de la région (teintes de couleur rouille, réemploi de matériaux provenant d'une usine désaffectée, planchers en bois de wagons de chemin de fer, mobilier complété d'anciennes armoires de cantines).

Ornella Vanzande

Sources
Archives du Groupe Gamma Architectes sprl : Dossier Tout-y-Faut, 2000.
Wallonie Architectures nouvelles, p.14-15.
Pieters Dominique, «Trait d'union» dans A+, n° 168, février-mars, 2001, p.83.
Groupe GAMMA Architectes SPRL, en ligne http://www.groupe-gamma.be/, consulté le 14/11/2013.
Claisse Joël & Loze Pierre, Wallonie. Nouvelles Architecture, 1996.