Maison Lhote

Habitation unifamiliale

1996 1996
Réalisé

Ancrée sur le versant sud de la vallée de la Haine, l'habitation, orientée plein sud à l'arrière, se caractérise par l'inscription de sa volumétrie simple dans la typologie environnante. 

Le bâtiment présente deux visages ; relativement fermé côté rue et totalement ouvert côté jardin. L'architecture est conçue pour bénéficier au maximum de l'apport solaire. Le balcon périphérique ainsi que le prolongement de toiture permettent de réguler l'ensoleillement. 

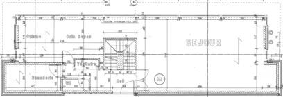
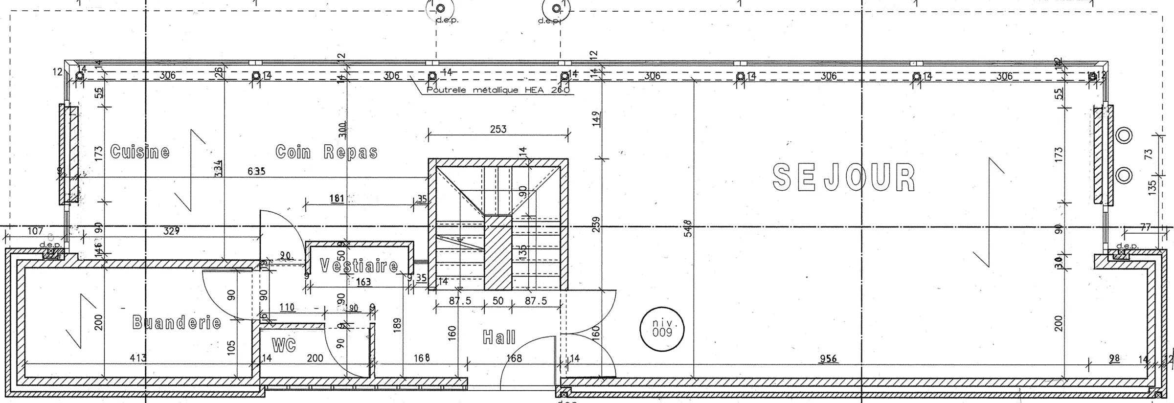
Les espaces de vie s'organisent sur deux niveaux articulés autour d'un escalier. Celui-ci distribue les circulations horizontales rejetées côté rue, libérant les surfaces de vie ouvertes sur le paysage.

Dominique Gluck

Sources
Barthélemy Jean, «L'édition 2000 du label de qualité architecturale et urbanistique» dans Les Cahiers de l'urbanisme, n° 32, décembre, 2000, p.54-57.
Claisse Joël & Loze Pierre, Wallonie. Nouvelles Architecture, 1996.
Lhote Thierry, Lhote Thierry, Archives de Thierry Lhote : Dossier habitation Lhote.