Maison Habran

Habitation unifamiliale

2007 2007
Réalisé

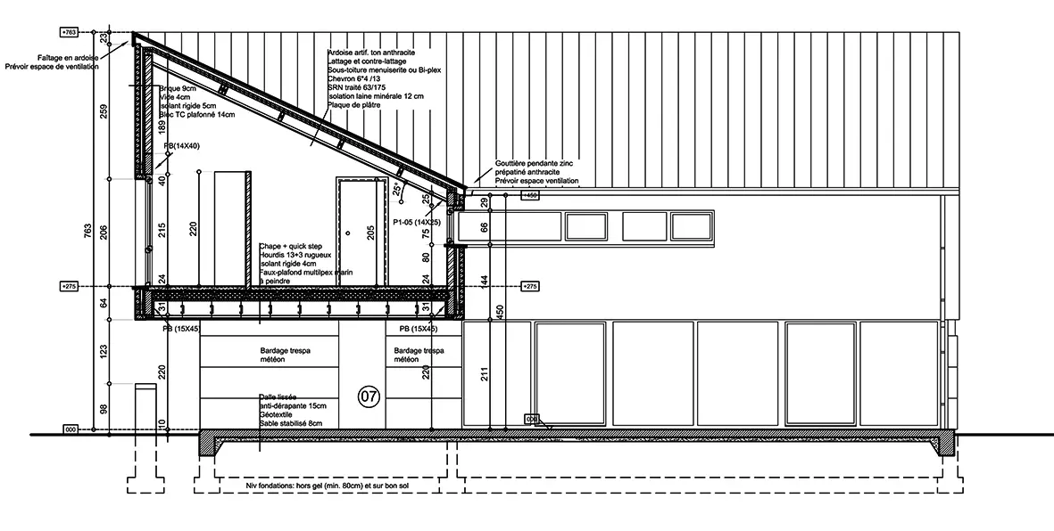
L'habitation s'implante en L sur la limite latérale droite d'un terrain orienté au sud. Elle se démarque du tissu résidentiel existant tant dans l'emploi de matériaux distincts – brique Desaegher Goya, Trespa pour les murs, tuile plate anthracite en terre cuite pour la toiture et aluminium noir pour les menuiseries – que par sa conception spatiale. L'élévation à rue rompt avec le contexte bâti par un jeu de toiture à versant unique, offrant une grande hauteur intérieure appropriable.

L'agencement spécifique des volumes permet de créer une terrasse protégée au sud. Au rez-de-chaussée, un carport s'intègre à la pinède du fond de la parcelle. L'architecte obtient ainsi un astucieux compromis entre perméabilité, intimité et accessibilité.

Étienne Godimus et Damien Darcis

Sources
Archives d'Hugo Bauwens : Dossier Maison Habran.