Maison Pichâ

Habitation unifamiliale

1995 - 1997 1995 - 1997 1995 - 1997
Réalisé

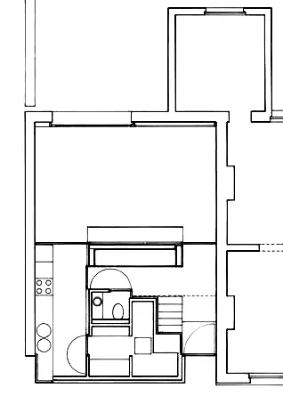
Ancienne épicerie de village convertie en habitation, le projet s'établit dans une ancienne annexe de la maison voisine en brique, typique de la Hesbaye. L'épicerie ayant été aménagée dans une étable, les architectes ont travaillé en deux temps : d'abord effacer les traces du commerce pour retrouver le bâtiment d'origine – où ce qu'il en restait –, puis l'aménager en logement d'une chambre avec bureau. 

Percée d'une large vitrine pour répondre à la fonction commerciale, la façade a été retravaillée et alignée à la maison voisine. Ce décalage permet d'agrandir  le volume intérieur et de marquer l'intervention contemporaine.

Anne-Catherine De Bast

Sources
Dartevelle André, Dartevelle André, La marge de l'architecte : Oeuvre en chantier.
Mercier C., «Une boîte dans une maison» dans Tu bâtis Je rénove, n° 170, septembre, 2001.