Logements durables

Logement public

2006 - 2014 2006 - 2014 2006 - 2014 2006 - 2014
Réalisé

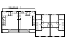
La Société wallonne du logement (SWL) a lancé, en 2006, un concours d'architecture pour la construction de « logement durable ». Plusieurs sites étaient proposés, dont un parking au centre d'un ensemble de logements sociaux à Jupille. 

La SWL a désigné différents lauréats, dont celui-ci sur Liège, en bordure du réseau cyclable (RAVeL). L'intégration des cinq nouveaux logements dans un quartier social existant datant des années 1970, les exigences en matière de performances énergétiques et le budget limité ont orienté les grandes lignes de ce projet. 

Les cinq logements s'implantent dans deux volumes et se développent en offrant des typologies variées (rez-de-chaussée PMR, duplex 2 et 3 chambres) afin de répondre aux besoins de mixité.

Anne-Catherine De Bast

Sources
«Concours et lauréats» dans Architrave, n° 157, mai, 2007, p.8.
Logist Karel & Péters Delphine & Tenuta Andréa, Tenuta-Péters, architectes + Karel Logist, écrivain, Liège : Fourre-Tout éditions, 2009, p.120-125.