Théâtre Varia
Jalon XX
Bibliothèques, centres de documentation, centres d'archives
2001 -
2001 -
1914
1914
Réalisé
Jean Coppin, propriétaire d'un terrain à Jumet, fait appel à Eugène Claes pour construire cet emblématique lieu de divertissement. Considéré comme l'un des premiers théâtres cinématographiques de la région, le Varia ouvre ses portes en 1914.
Bien que l'avant-projet présente une structure métallique, le béton armé, de surcroît peu coûteux, s'impose pour ses qualités de résistance au feu. En effet, le lieu est appelé à stocker de nombreuses bobines de film en nitrate de cellulose, très inflammable. Témoignage d'une période faste, le Varia est fermé en 1984, passe de main en main et ne cesse de se détériorer jusqu'à être racheté en 2000 par l'Institut du patrimoine wallon.
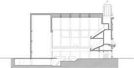
Le Varia se compose de deux volumes : une salle pouvant accueillir mille cinq cents personnes et un volume annexe contenant l'accueil, deux cafés et les habitations du concierge. La façade ostentatoire, composée selon les canons en vigueur au début du XXe siècle dans un style Art nouveau tardif empreint de classicisme, masque un vaste volume en béton armé. Cet ensemble évoque curieusement la typologie du « hangar décoré », identifié par Robert Venturi et Denise Scott-Brown dans l'ouvrage controversé Learning from Las Vegas en 1972.
Bien qu'un projet de restauration soit en cours depuis les années 2000 sous l'égide de la Cooparch – devenue par la suite Skope –, les seules transformations réalisées à ce jour portent sur la sécurisation et la préservation du lieu dans son état actuel.
Léone Drapeaud, Johnny Leya et Maurizio Cohen
| Sources |
|---|
| Arcq Robert, Jumet : pages d'histoire, Jumet, Éditions Graphing, 1973, p.49. |
| Le patrimoine monumental de la Belgique. Wallonie. Vol. 20, Hainaut, arrondissement de Charleroi, Liège, Mardaga, 1994. |
| Caltagirone Sandra, «Charleroi unique et multiple, le cinéma théâtre Varia à Jumet» dans Les Nouvelles du Patrimoine, n° 108, avril, 2005, p.25-26. |