Maison Thomas
Jalon XX

Habitation unifamiliale

1935 1935
Réalisé

L'architecte conçoit cette maison au début de sa carrière, période durant laquelle il se consacre essentiellement à la réalisation d'habitations privées. Il fait déjà preuve de beaucoup de maturité architecturale avec ce bel exemple d'architecture moderniste, influencé par les réalisations de l'architecte hollandais Willem Marinus Dudok. 

En about d'une rangée de maisons, l'habitation d'une belle valeur expressive s'intègre au contexte de la rue. Ses trois façades dégagent de belles vues sur le jardin bordé de haies. La volumétrie cubique et austère est éclatée et traitée en dégradé vers le haut. La composition des façades est géométrique, marquée par le jeu de différents plans de briques foncées et claires, et précisée de lignes en creux, à redents, épaisses ou fines. Les joints horizontaux en retrait sont bien marqués et structurent les surfaces. 

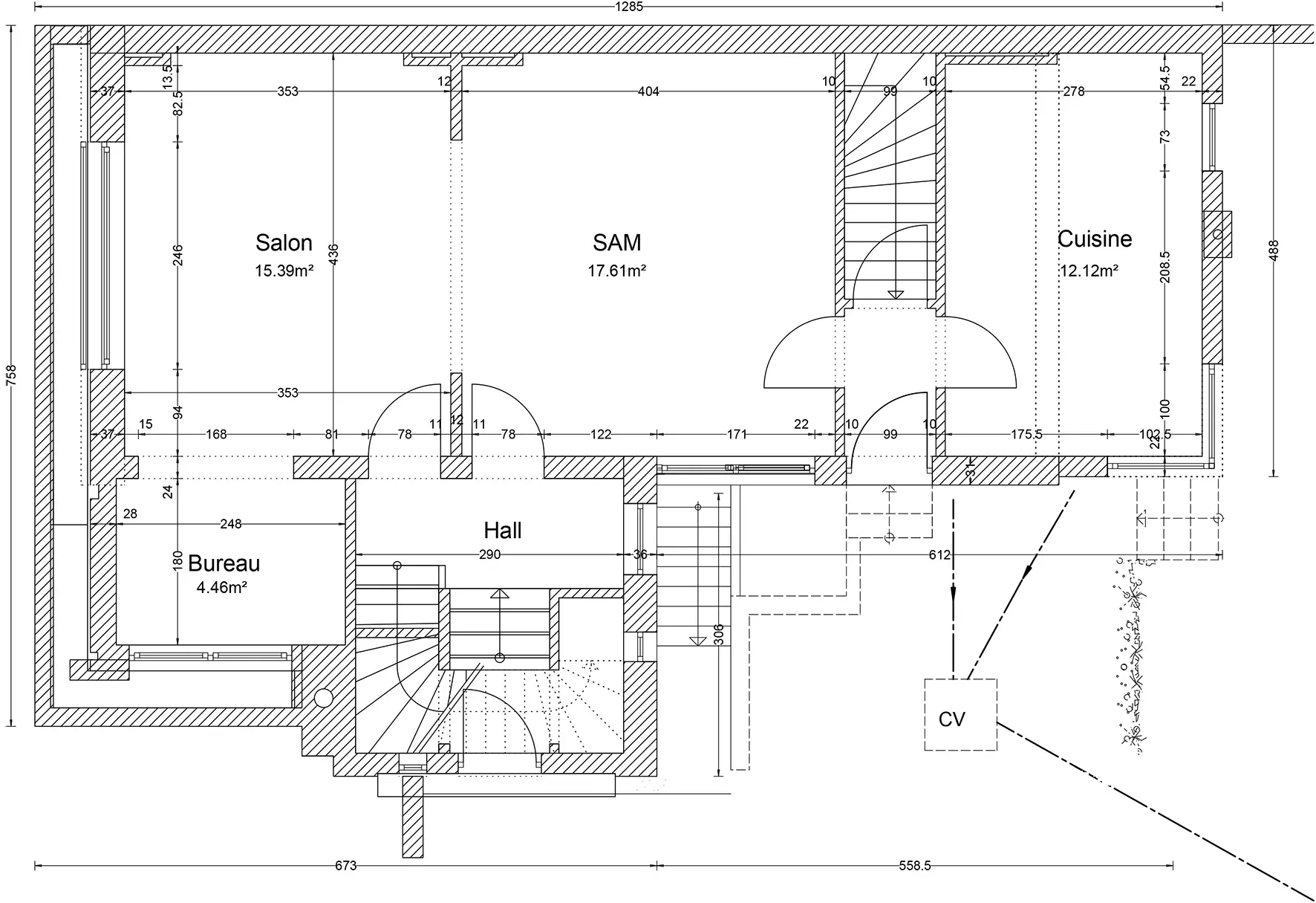
L'entrée, la circulation verticale et le bureau sont rappliqués vers le sud, créant ainsi la richesse volumétrique ; la fonction crée la forme. L'entrée latérale est privatisée par un muret. L'élément de cheminée accentue l'élancement, et l'intéressante gargouille porte la signature de l'architecte.

 L'habitation se distribue sur trois niveaux. Le plan s'établit plus classiquement en enfilade. Les fonctions de jour, au rez-de-chaussée, et de nuit, aux étages, s'étirent entre deux murs porteurs parallèles au mitoyen. Toutes les pièces bénéficient d'un ensoleillement maximal par le biais de baies en angle. 

Dominique Cazzaro

Sources
Mons, coll. Patrimoine architectural et territoires de Wallonie, Wavre, 2011, p.114.
Colin Benoist, René Panis, Architecture, urbanisme, rimes échappées, p.9.
«L'architecte-urbaniste René Panis (Liège 1910-Mons 1987)» dans Les Cahiers de l'Urbanisme, n° 74, mai, 2010, p.27.
«René Panis, numéro spécial» dans Architecture et vie, n° 21, mars, 1987.