Maison Liberton

Habitation unifamiliale

2012 2012 2012 2012
Réalisé

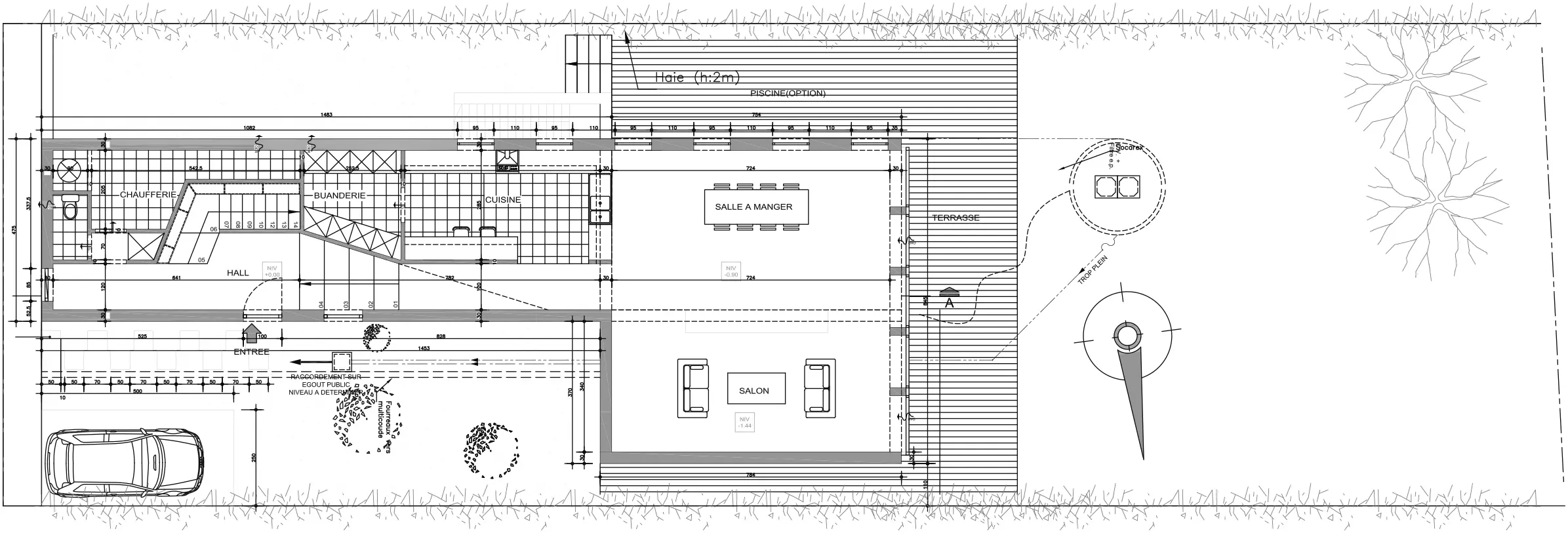
Située le long d'une zone verte protégée, la maison s'inscrit sur les traces d'une ancienne ferme implantée perpendiculairement à la voirie.  Son caractère monolithique est renforcé par l'absence d'éléments architecturaux extérieurs (cheminée, gouttières, etc.) et par une enveloppe complète en afzelia qui établit un lien organique avec le cadre environnant, appelé à s'accentuer avec le vieillissement naturel du bois, ses changements de teintes et l'apparition bienvenue d'éléments végétaux (mousses). 

Les espaces intérieurs bénéficient d'un ensoleillement maximal grâce aux larges baies vitrées ouvertes sur le jardin. Ancien collaborateur au sein du bureau bruxellois Bogdan & Van Broek, actif au sein de l'Atelier d'architecture Regards croisés, Léonard Gallegos réalise ici, avec cette maison au dessin archétypal, l'un de ses premiers projets personnels.

Pierre Callewier et Thomas Moor

Sources
Une brique dans le ventre, RTBF, 9 mai 2014.
Archives de l'AM Paradise : Dossier Liberton.