Maison avenue du Centenaire

Habitation unifamiliale

1930 1930
Réalisé

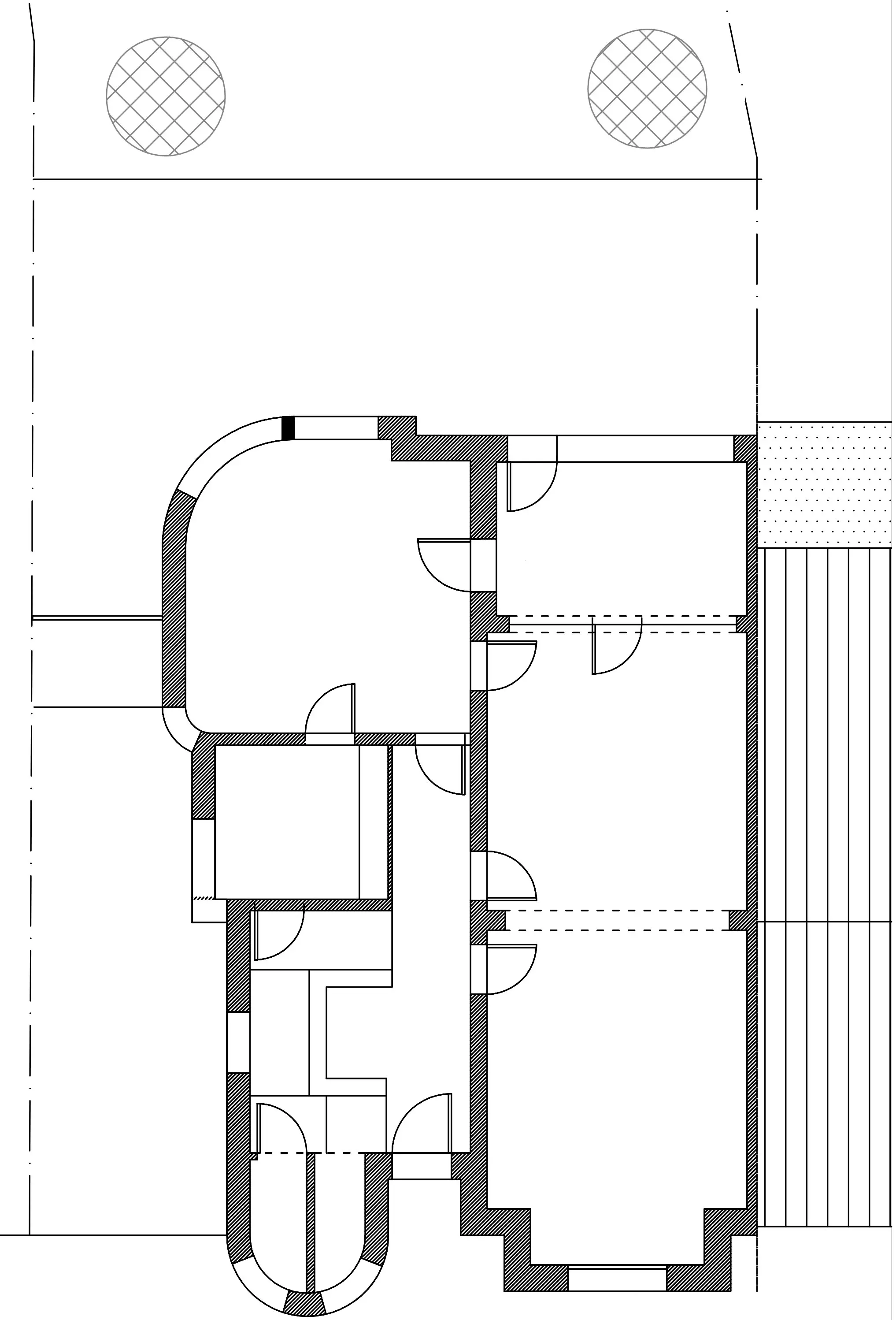
Suite au démantèlement des remparts, l'avenue du Centenaire est tracée et sera ultérieurement bordée par un ensemble de maisons privées de l'entre-deux-guerres, à la limite entre ville et ruralité. Actif à la côte belge, Maurice Zinque y réalise deux habitations (n°29 et 31), dont la première – point de repère avec son avancée cylindrique en proue de navire – est emblématique de la symbolique de l'architecture « paquebot », comme l'est l'organisation de son plan, enchaînant espace intérieur et environnement extérieur. 

La timonerie surplombe l'entrée par sa loggia rectangulaire, comme pour mieux observer le trafic. L'espace du bel-étage conduit à une baie en largeur s'ouvrant sur un jardin tout en profondeur. La salle à manger s'ouvre sous forme de rotonde sur le paysage. À l'étage, la découverte du panorama est mise en scène au sein d'une chambre composée comme une dunette débouchant sur un balcon muni de son garde-corps en forme de bastingage.

Jean-Alexandre Pouleur

Sources
Mons, coll. Patrimoine architectural et territoires de Wallonie, Wavre, 2011, p.113.
«Regards vers la Wallonie» dans Bâtir, n° 54, Bruxelles, mai, 1937, p.1202-1205.