Maison Busine
Jalon XX

Habitation unifamiliale

1956 - 1958 1956 - 1958
Réalisé

Cette maison est aménagée pour Eudore Busine, frère de Zéphir Busine, un artiste qui travaille souvent avec l'architecte Jacques Dupuis. Il s'agit de la conversion de deux petites maisons d'ouvriers achetées juste avant la guerre. En moellons gris, elles sont flanquées d'une grange et d'un verger côté gauche. 

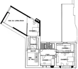
Ce projet démontre le talent de Dupuis dans la conception d'une architecture d'une grande poésie avec peu de moyens. Le plan et les façades sont réaménagés et la maison est considérablement agrandie du côté gauche, sous une prolongation du toit transversal en appentis de la grange. Ce nouveau volume, dans lequel sont logés le séjour et une chambre à coucher supplémentaire, est placé en biais vers le sud. Son insertion donne naissance à un jardin intérieur, séparé de la rue par un mur de 1,6 m. Les moellons du mur du jardin sont les mêmes que ceux de l'ancienne maison, le mur latéral avec l'entrée et l'extension sont, par contre, peints en blanc. 

Le rez-de-chaussée des maisons réaménagées abrite le garage, le bureau et la cuisine ; à l'étage se trouvent trois petites chambres et la salle de bains. L'union du mur courbe du jardin avec la silhouette légèrement oblique du séjour, en clôture du volume hermétique existant, se traduit par un espace exempt de toute excentricité, la réponse adéquate aux vœux de l'habitant et la preuve d'un grand respect pour l'environnement. 

L'atmosphère d'intimité atteint son point culminant dans le verger-jardin arrière, enclos entre le vieil atelier de menuiserie et la nouvelle salle de séjour. Dupuis n'a pas fait d'ajouts, si ce n'est un écran ajouré en briques cimentées devant la fenêtre ouest du séjour, et la fenêtre trapézoïdale, féconde en contrastes, du bureau. 

Maurizio Cohen

Sources
Bontridder Albert, «Jacques Dupuis ou l'architecture perdue et retrouvée» dans Architecture, n° 39-40, 1961.
Belgeonne G., «Rencontres fortuites mais nécessaires» dans Bulletin de la Classe des Beaux-Arts, Académie Royale des Sciences, des Arts & des Lettres de Belgique, n° 1/5-9, 1990, p.111-123.
Thomaes Jan & Cohen Maurizio, Jacques Dupuis, l'architecte, Bruxelles, La lettre volée, 2000.