Maison Donckels-Desirotte

Habitation unifamiliale

2004 - 2007 2004 - 2007 2004 - 2007 2004 - 2007
Réalisé

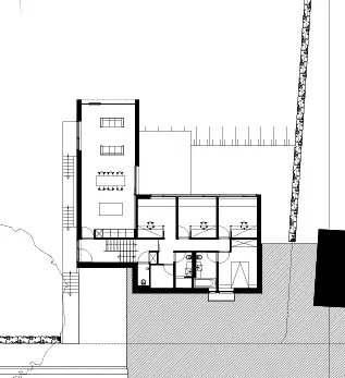
Sur une parcelle étroite en fort dénivelé, le projet épouse le profil naturel du sol, préservant le dégagement visuel vers le vallon boisé depuis les habitations voisines. Couvert de bardage et d'une toiture en cuivre à joints debout, le volume principal est encastré dans la pente et reprend, au niveau supérieur, l'entrée privative, les circulations verticales ainsi que séjour et cuisine. 

Au niveau inférieur se développent les bureaux et salle de réunion. Une circulation extérieure latérale permet de distribuer ces deux fonctions indépendamment l'une de l'autre. Enterré et masqué par une haie, le volume secondaire en briques foncées accueille, chambres, pièces d'eau et services sous une toiture plate végétalisée. 

La gamme restreinte de matériaux, aux teintes foncées, s'inscrit dans une recherche de mimétisme avec le contexte bâti et non bâti.

Thomas Moor