Maison Willems

Habitation unifamiliale

2007 - 2009 2007 - 2009
Réalisé

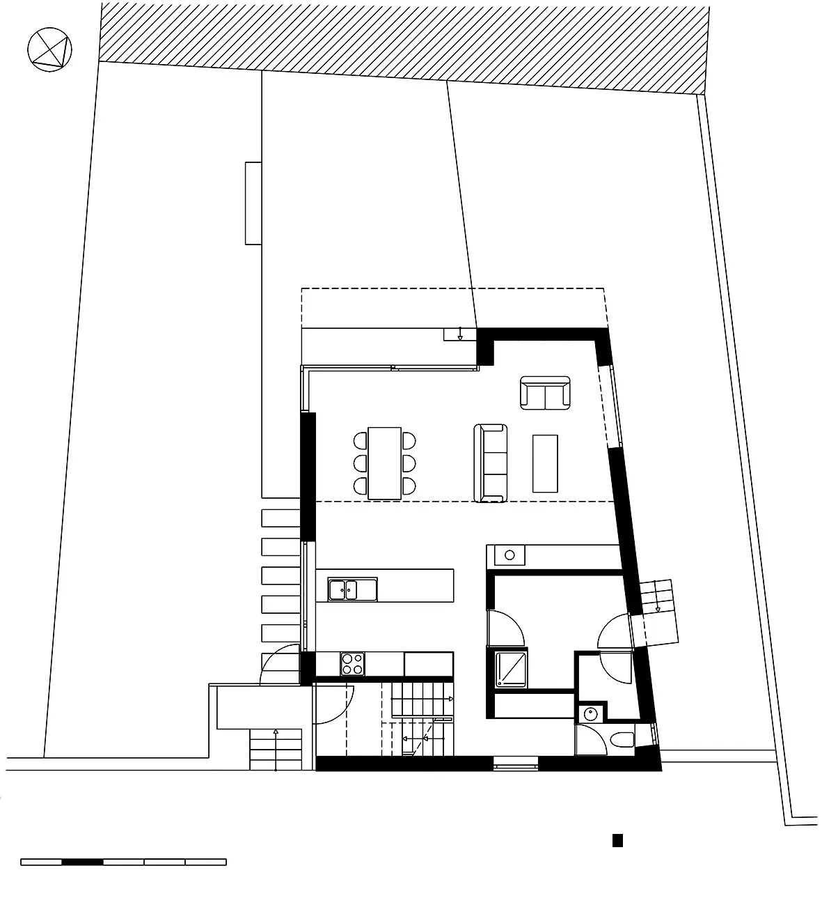
La maison, destinée à une jeune famille, est sortie de terre sur le coin du potager familial. Le projet a été guidé par l'idée de valoriser le terrain disponible, un souci d'intégration au bâti du village et une recherche du meilleur rapport compacité-spatialité. 

La volumétrie simple, sans être simpliste, répond parfaitement au programme. à front de rue, le bâtiment s'élève pour accueillir les chambres au niveau supérieur. Une toiture à un pan couvre l'ensemble et déborde sur la grande baie vitrée du séjour, au sud. 

La construction est traditionnelle : maçonnerie de blocs, hourdis de béton, isolation renforcée. Un parement léger achève le tableau : des ardoises en losanges de teinte claire, similaire à l'habillage de nombreux pignons du quartier.

Anne-Catherine De Bast

Sources
«Maison Willems» sur le site d'a, en ligne https://www.darchitectures.com/maison-willems-a1046.html, consulté le 20/05/2014.
A+D, n° 37, juillet, 2011.
Bachmann Wolfgang & Lederer Arno, Einfamilien Häuser, Das ultimative Planungsbuch, 2012.