École du Centre
Ecoles maternelles Ecoles primaires Maisons médicales
1937 - 1940
1937 - 1940
Détruit
Cette école fait partie du plan d'aménagement du centre de la commune d'Hornu que Victor Bourgeois dresse en 1937.
Elle est réalisée dans le cadre du Plan du travail d'Henri De Man, avec l'aide de subsides de l'Office de redressement économique (OREC) et fait l'objet d'une procédure d'approbation par les services de l'architecte Henry Van de Velde, qui en est le conseiller principal.
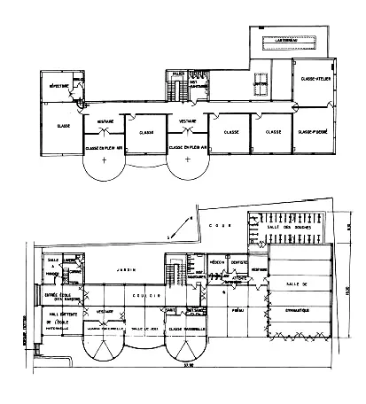
Malgré un schéma de circulation relativement complexe, la composition des plans est simple. Une première entrée, à droite sous le préau, donne accès au centre médical et à l'école maternelle, dont les locaux se trouvent dans les deux volumes cylindriques. L'autre entrée est située dans la rue André de Mot et distribue, grâce à un large couloir et un hall d'escalier, huit classes à l'étage, dont deux étaient conçues pour donner cours en plein air.
La construction est basée sur une ossature en acier zingué avec un remplissage en plaques de grès. Bourgeois justifiait ce choix en l'inscrivant dans la politique économique protectionniste du cabinet Van Zeeland-De Man qui entendait soutenir les industries céramiques et métallurgiques locales. Par ailleurs, il soulignait sa référence à l'Art nouveau bruxellois, un style dans lequel « la charpente métallique [...] joue un rôle décisif dans la détermination de la qualité de l'ensemble ».
Dans la même commune, à la même époque, Bourgeois réalise aussi l'école « Le Grand Hornu » (détruite pendant la guerre), la transformation de la maison communale et la transformation et l'extension de l'École de la Chapelle.
Iwan Strauven
| Sources |
|---|
| Bourgeois Victor, «La nouvelle école du centre à Hornu» dans L'Ossature métallique, n° 1, janvier, 1940, p.20-25. |
| Deletang Maurice, «Au service de l'enfance : Les plaines de jeux» dans Reconstruction, n° 11, octobre, 1941, p.14-19. |
| Gilles Pierre, «L'Urbanisation pratique en Hainaut. Le plan d'urbanisation et de verduration de la commune de Hornu» dans Bâtir, n° 54, Bruxelles, mai, 1937, p.1179-1181. |