Maison Sentier du Haut des Rocs

Habitation unifamiliale

1973 1973
Réalisé

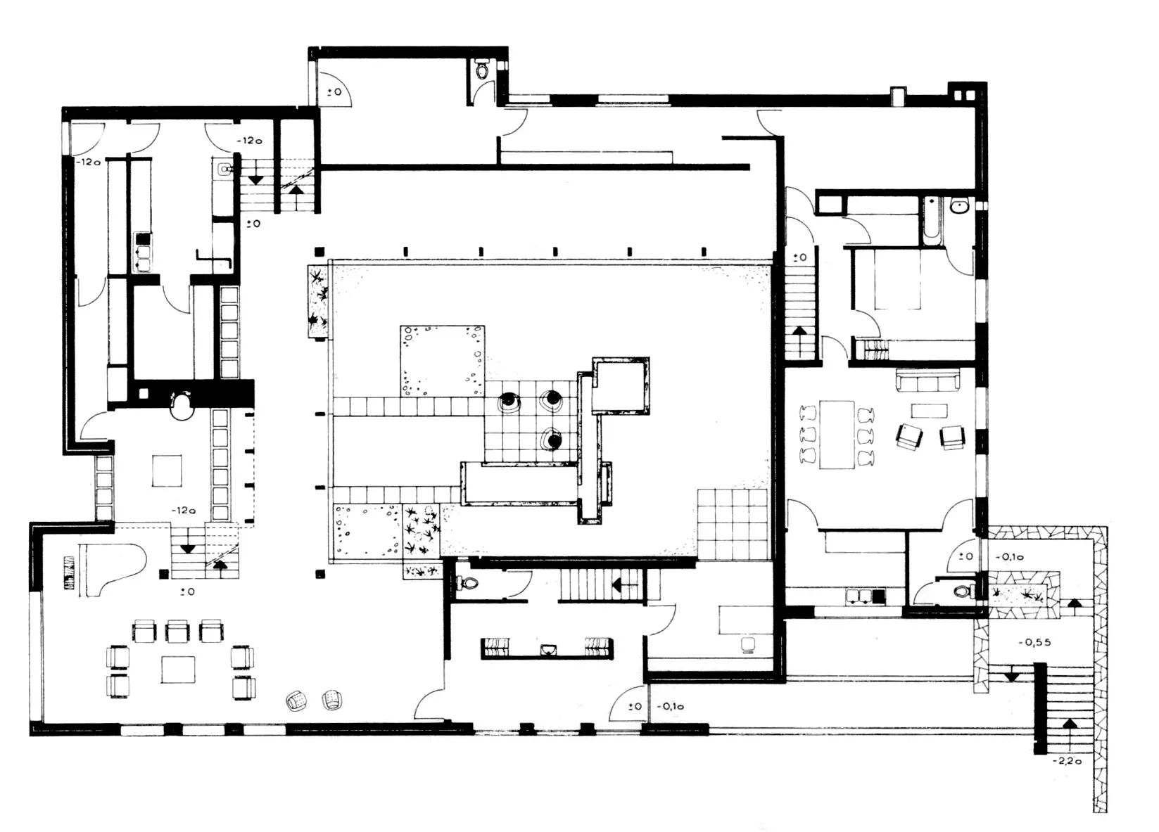
Sur un terrain en légère pente, à la campagne, cette très vaste villa organise ses espaces autour d'une grande cour intérieure mise en valeur par une série de pièces d'eau en cascade. 

L'expression générale joue du contraste : vues de l'extérieur, les façades en grès rouge sont sobrement percées par des fenêtres fonctionnelles alors que, vers le patio, les élévations nord et est sont essentiellement constituées de grandes baies vitrées doublées d'une galerie sur deux niveaux. 

Les espaces de vie longent cette dernière pour se développer en L sur plusieurs demi-niveaux, tandis que l'aile sud accueille l'habitation du concierge.  Le plan concentrique place les espaces ouverts – du living et du coin feu au rez-de-chaussée, du coin à manger et de la terrasse couverte à l'étage – en relation directe avec le patio, tandis que la galerie, plus marquée dans l'aile est, isole les chambres par son épaisseur. 

Le paysage est mis en valeur par la passerelle qui permet d'accéder à l'entrée principale et par les quatre balcons blancs suspendus à la façade. La mise en œuvre de nombreux matériaux nobles donne à la villa un caractère distingué. Le hall d'entrée est défini par un mur de marbre blanc, des poutres et un plancher en bois massif délimitent un coin feu chaleureux, les pièces d'eau du patio font se côtoyer galets blancs, mosaïque et roche dans une composition élaborée de nature artificielle. Chaque espace possède sa spécificité au sein d'une déambulation fluide et composée.

Antoine Wang

Sources
«Autour d'un patio» dans Villas, n° 6, 1973.