Eglise Notre-Dame de Bon Secours

Eglises ou apparenté

1932 - 1934 1932 - 1934
Réalisé

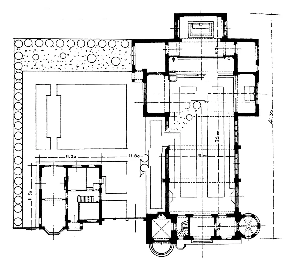
Sous l'impulsion de l'abbé Dessart et avec l'aide financière d'une famille de Pontisse, Robert Toussaint conçoit une église et un presbytère de style moderniste aux accents romans. La construction s'insère harmonieusement dans le paysage grâce à l'emploi de matériaux locaux tels que les moellons de grès de la vallée de l'Ourthe, le petit granit et les ardoises. 

Le plan, simple, comporte un large et unique vaisseau débouchant sur un chœur à chevet plat. Ces imposantes proportions sont permises grâce à une ossature d'arcs-doubleaux elliptiques en béton armé insérée dans les murs. Cette structure annule la poussée oblique des voûtes et rend la présence de bas-côtés obsolète. Ceux-ci sont ainsi remplacés par de légers contreforts extérieurs.

Aude Kubjak

Sources
Toussaint Robert, «La nouvelle Eglise de Pontisse (Herstal-Liège)» dans L'Emulation, n° 9, Bruxelles, septembre, 1936, p.148.
D. M., «Eglise de Pontisse» dans Bâtir, n° 40, Bruxelles, mars, 1936, p.609-610.
«L'architecture religieuse moderne et l'ardoise» dans Bâtir, n° 63, Bruxelles, février, 1938, p.82.
L'Emulation, n° 6, Bruxelles, juin, 1937, p.101.