Station d'épuration de Liège-Oupeye
Stations d'épuration
2004 - 2007
2004 - 2007
2004 - 2007
Réalisé
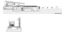
En plus de remplir sa fonction de traitement des eaux (450 000 habitants), en bordure du canal Albert, la station d'épuration de Liège-Oupeye a pour mission d'offrir un rôle didactique et éducatif : cet aspect, ajouté à la préoccupation d'intégrer l'infrastructure dans son environnement, a dicté les grandes lignes du projet.
Les ouvrages de traitement d'eau sont ainsi encastrés dans le sol, dissimulés aux regards des promeneurs, et les voiries, rejetées à l'arrière du bâtiment. À contrario, les lieux où travaille le personnel et où circulent les visiteurs (salle d'exposition, cafétéria) s'affichent clairement dans le paysage. La tour de visite et le prisme oblique sont habillés de zinc, de verre ou de pierre, matériaux choisis pour leur transparence ou leur caractère naturel, organique ou minéral.
Au cœur du bâtiment, un œuf de béton armé renferme une salle de conférences (150 places).
Anne-Catherine De Bast
| Sources |
|---|
| Architrave, février, 2009. |
| Focus on zinc, n° hors-série, 2008. |