Hôtel de Ville de Gilly
Jalon XX
Hôtel de ville, cité/antenne administrative ou bâtiment institutionnel
Réalisé
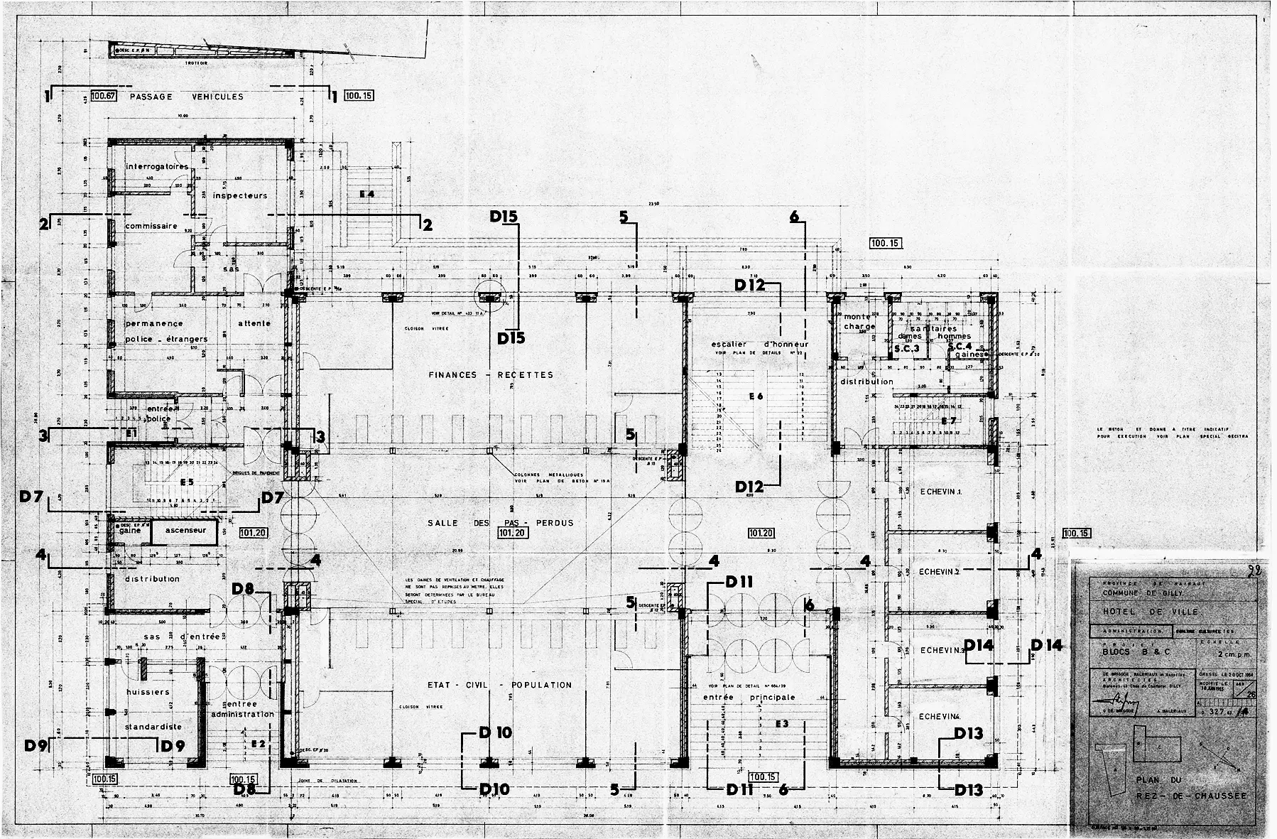
La maison communale s'implante en recul par rapport à la chaussée de Lodelinsart, créant ainsi la place communale Jules Destrée. Elle propose quatre façades différentes qui s'étalent sur trois niveaux.
Depuis l'entrée principale, l'escalier d'honneur est mis en valeur par de grands vitraux harmonieusement associés à des murs en briques. Un garde-corps en bois mène au premier étage vers le hall de réception baigné de lumière grâce à l'éclairage zénithal. Le hall ainsi que les différents espaces administratifs et d'exposition sont mis en valeur par une double hauteur qui s'exprime par de grandes baies vitrées sur la façade principale.
Celle-ci se démarque par l'utilisation de la pierre blanche ainsi que par un soubassement en pierre bleue, se prolongeant sur les façades latérales et renforçant ainsi les angles du bâtiment. Les autres façades sont composées de briques brunes et suivent le même langage avec une composition très structurée, marquée par les fenêtres de dimensions réduites.
Fabio Ferreira et Irène Lund
| Sources |
|---|
| Archives communales de Charleroi. |